家在深圳,真实业主生活圈_房网论坛

0

|

9

招商瑧玺准备开展示,样板在装修中

QHQH168
QHQH168

积分:-

注册时间:-

主楼
2023-08-04 09:07:33
标签: 点击标签查看相关内容

招商瑧玺准备开展示,样板在装修中

位于妈湾城市展厅,即将开放展厅样板,计划9-10月入市

推出约106-128㎡的3-4房户型,大概有320套房
前海住宅限价,妈湾片区毛坯限价 10.25 万/m²

分享
0
QHQH168
QHQH168

积分:-

注册时间:-

沙发
2023-08-04 09:08:43
亮点给人是看河绿道



QHQH168
QHQH168

积分:-

注册时间:-

板凳
2023-08-04 09:10:37
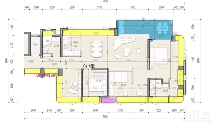
128平四房



QHQH168
QHQH168

积分:-

注册时间:-

地板
2023-08-04 09:11:03
107平户型,横厅



QHQH168
QHQH168

积分:-

注册时间:-

4楼
2023-08-04 09:11:27
106平户型 竖厅



QHQH168
QHQH168

积分:-

注册时间:-

5楼
2023-08-04 09:12:58
缺点就感觉楼盘不大
QHQH168
QHQH168

积分:-

注册时间:-

6楼
2023-08-04 09:13:32
目前看户型使用率不错,官方说有90多的使用率,你觉得有吗?

QHQH168
QHQH168

积分:-

注册时间:-

7楼
2023-08-04 09:13:47
2021年9月29日,招商领玺2期线上选房,推255套住宅,备案价约8.58-12.2万/㎡,均价10.25万/㎡,均为毛坯交付。

历时3个小时,本次推售255套房源全部选完,最后一个选房的为350号,成最后一个幸运儿。目前一二期已经交付入住。

本次推售的320套招商瑧玺(领玺三期)能否重重围困内再次扫完?

QHQH168
QHQH168

积分:-

注册时间:-

8楼
2023-08-04 09:15:25
目前进度已挖完,准备上塔吊

客家大少
客家大少

积分:-

注册时间:-

9楼
2023-08-04 11:31:57 来自Android手机客户端
你好大佬,请问妈湾城市展厅在哪里?要预约吗
  • 插入图片

    支持一次选择9张图片上传(使用Ctrl、Shift选中);

    支持jpg、png、gif,单张图片不超过10M,png不超过1M,gif不超过300K。

    • 继续添加

  • 提到好友

3(16px)

楼主最近发表

相关帖子

    大家都在看

    下载家在深圳APP

    关注家在公众号