家在深圳,真实业主生活圈_房网论坛

0

|

9

招商瑧玺家园是精装修交房(106-128平户型)

前后南
前后南

积分:-

注册时间:-

主楼
2023-07-20 14:24:02
标签: 点击标签查看相关内容

招商瑧玺家园是精装修交房(106-128平户型)

招标项目名称:瑧玺家园精装修工程

招标估价(5987万元)

预计项目概况:瑧玺家园精装修工程

预计招标时间:2023-08-19至2023-10-18

分享
0
前后南
前后南

积分:-

注册时间:-

沙发
2023-07-20 14:30:54
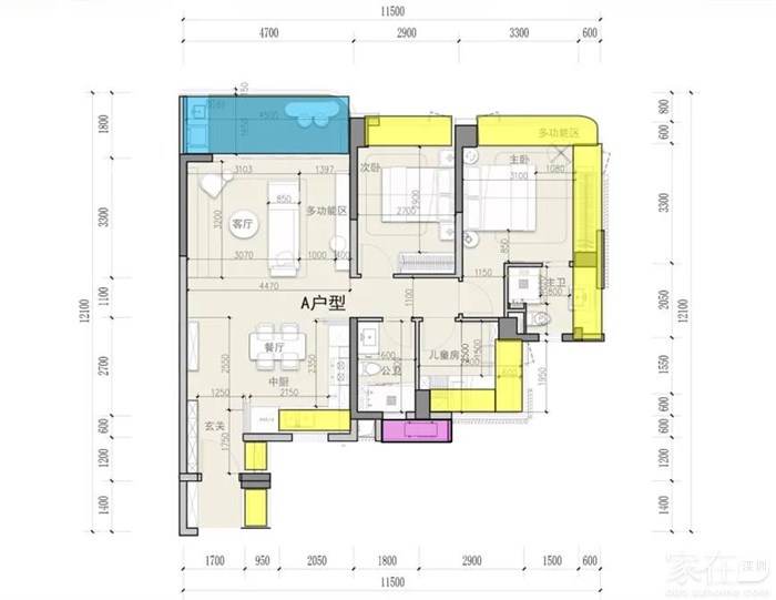
320套,106~128平的3~4房,10.3万

项目约320套房源户型分2个面积段 3种户型,其中106-107㎡ 3房2卫户型约240套,128㎡4房2卫 约80套,赠送后约92%-97%的超高使用率。




前后南
前后南

积分:-

注册时间:-

板凳
2023-07-20 14:31:41 来自Android手机客户端
128平4房

前后南
前后南

积分:-

注册时间:-

地板
2023-07-20 14:32:06 来自Android手机客户端
107三房

前后南
前后南

积分:-

注册时间:-

4楼
2023-07-20 14:32:42 来自Android手机客户端
106三房

前后南
前后南

积分:-

注册时间:-

5楼
2023-07-20 14:34:36 来自Android手机客户端
平面图

前后南
前后南

积分:-

注册时间:-

6楼
2023-07-20 14:37:40 来自Android手机客户端
效果图





前后南
前后南

积分:-

注册时间:-

7楼
2023-07-20 16:46:08
工程名称:瑧玺家园桩基础工程

建设单位:深圳市前海蛇口和胜实业有限公司

建设规模:14346.53平方米

建设地址:南山区前海19开发单元05街坊

合同价格:5885.446109万元

设计单位:深圳华森建筑与工程设计顾问有限公司

施工单位:深圳市蛇口招商港湾工程有限公司

监理单位:上海市建设工程监理咨询有限公司

合同开工日期:2023-04-10合同竣工日期:2023-07-28




客家大少
客家大少

积分:-

注册时间:-

8楼
2023-07-28 22:37:39 来自Android手机客户端
那条景观河什么时候改造?
郑煜
郑煜

积分:-

注册时间:-

9楼
2023-12-25 22:20:53
请问这些信息哪里看到呢?

  • 插入图片

    支持一次选择9张图片上传(使用Ctrl、Shift选中);

    支持jpg、png、gif,单张图片不超过10M,png不超过1M,gif不超过300K。

    • 继续添加

  • 提到好友

3(16px)

楼主最近发表

相关帖子

    大家都在看

    下载家在深圳APP

    关注家在公众号