家在深圳,真实业主生活圈_房网论坛

0

|

20

深业云海湾106-183平户型图

qh飞
qh飞

积分:-

注册时间:-

主楼
2023-01-03 09:46:46 来自Android手机客户端
标签: 点击标签查看相关内容

深业云海湾106-183平户型图

总共1141套住宅,项目共8栋住宅,其中5栋为商品房共637套,其余3栋均为人才房504套。毛坯限价9.2万,装修预计9.7万,预计年后2月份入市,一下子你觉得会卖完吗?

分享
0
qh飞
qh飞

积分:-

注册时间:-

沙发
2023-01-03 09:47:13 来自Android手机客户端
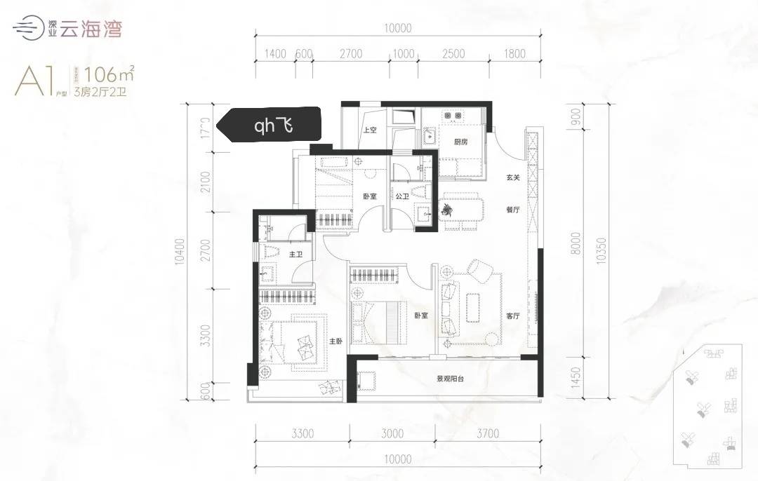
A1户型106平3房2厅2卫

qh飞
qh飞

积分:-

注册时间:-

板凳
2023-01-03 09:48:02 来自Android手机客户端
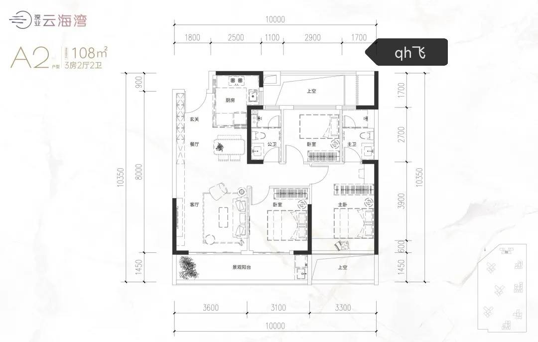
A2户型108平的3房2厅2卫

qh飞
qh飞

积分:-

注册时间:-

地板
2023-01-03 09:50:35 来自Android手机客户端
B1竖厅116平的3房2厅2卫




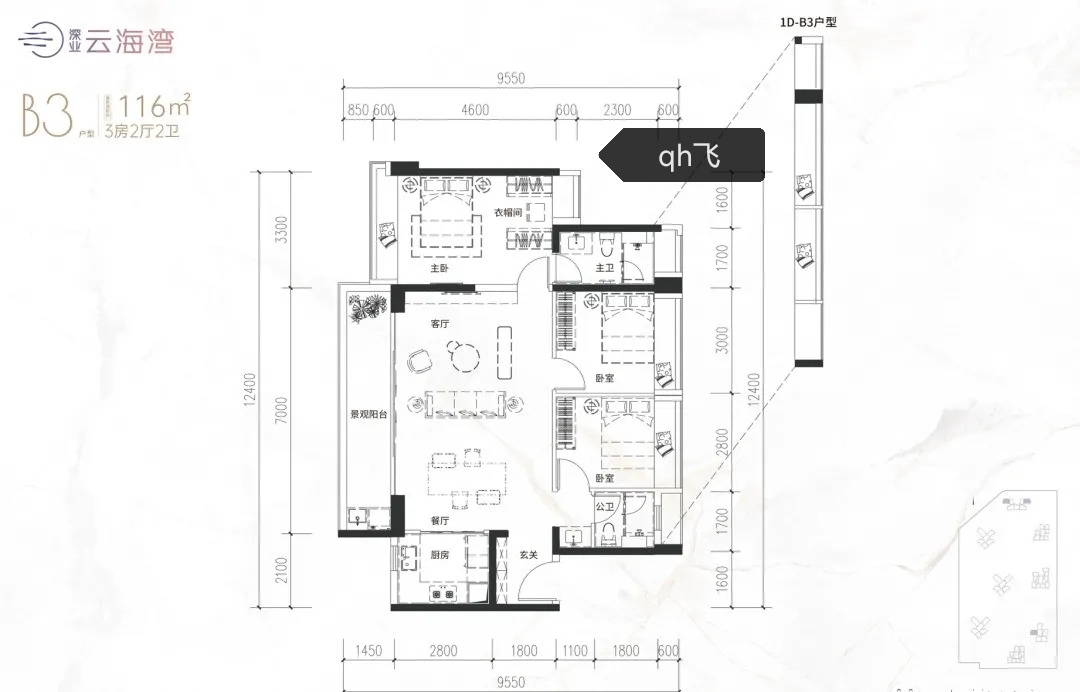
B3横厅116平3房2厅2卫


qh飞
qh飞

积分:-

注册时间:-

4楼
2023-01-03 09:52:18 来自Android手机客户端
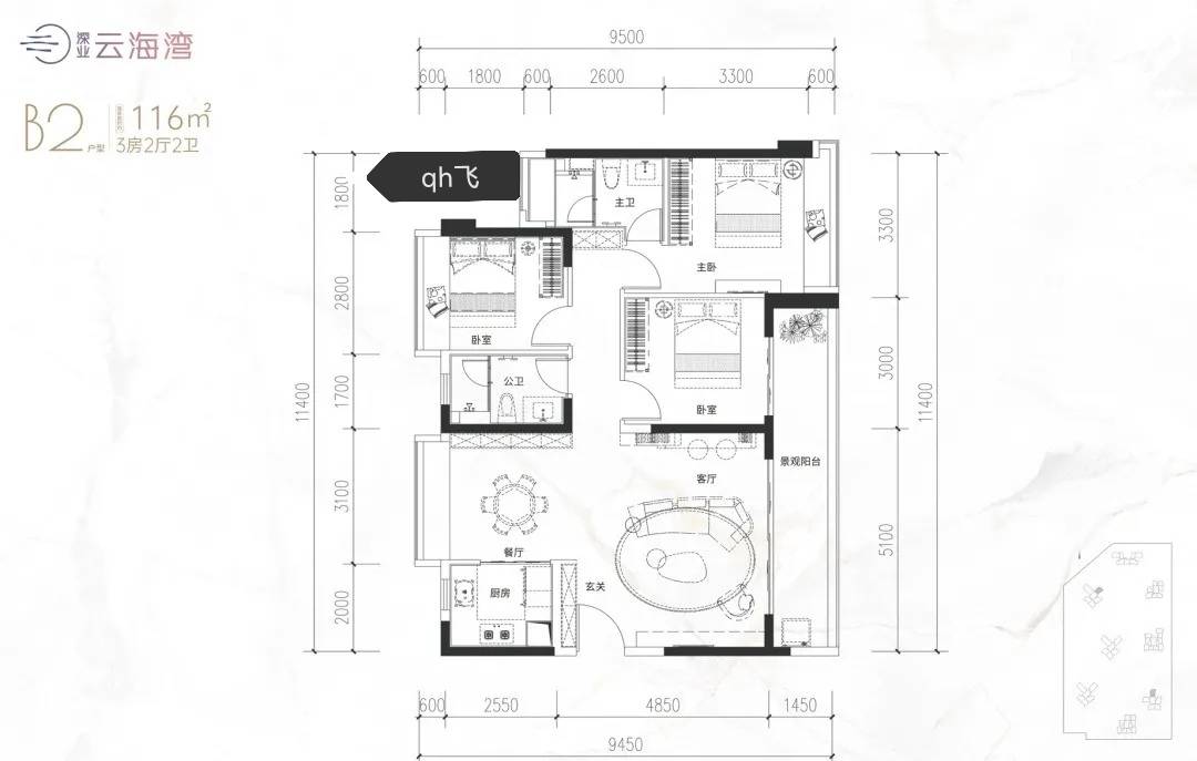
B2横厅南北通透,116平3房2厅2卫

qh飞
qh飞

积分:-

注册时间:-

5楼
2023-01-03 09:55:51 来自Android手机客户端
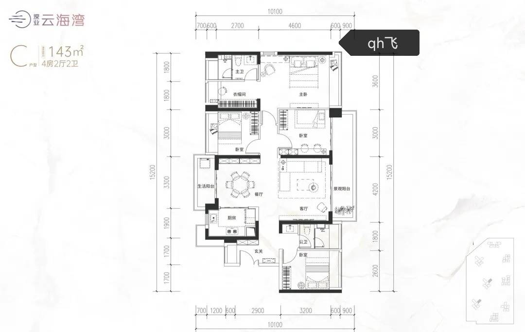
C户型143平的4房2厅2卫

qh飞
qh飞

积分:-

注册时间:-

6楼
2023-01-03 09:58:24 来自Android手机客户端
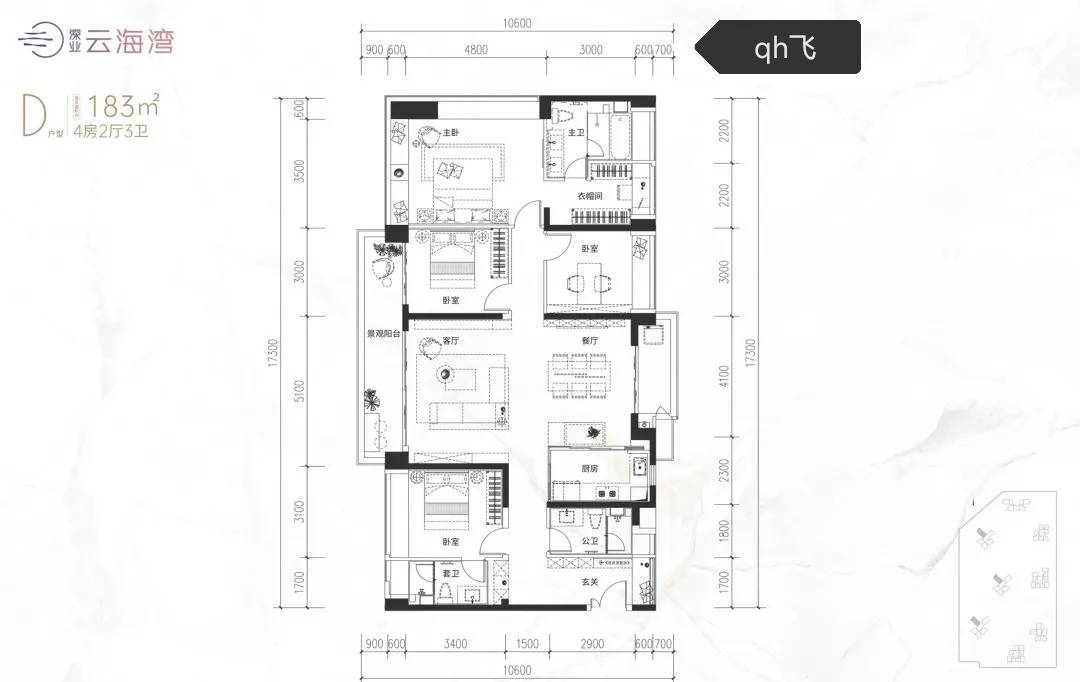
183平的4+1房2厅3卫

qh飞
qh飞

积分:-

注册时间:-

7楼
2023-01-03 10:02:40 来自Android手机客户端
开发商:深圳市深业南方地产集团有限公司

总建面:21万㎡

产品面积:约108-115-143-180㎡ 

总户数:1141

车位:1200

容积率:约4

绿化率:约30%

产权年限:70年

业态情况:高层住宅、人才房、商业

物业类型:配10000㎡商业,72班9年一贯制学校

交通配套

最近地铁为15 11号线,前方站直线距离1公里,地图显示所需约16分钟,此外开车前往各区都比较便捷。


商业配套

项目自带1万平商业,周边多为开发建设项目,商业配套相对缺乏,日常购物需求可前往龙海商业广场,地图显示,步行距离约为1.2公里左右,也可步行华润前海万象城距离1.6公里,所需时间约为18分钟左右。此外,可前往前海壹方城,自驾车辆约为10分左右。



教育配套

最近学校有前海港湾小学、北大附中(南山分校),最近的为前海港湾小学,直线距离约为400米左右。楼下就是72班的9年1贯学校,斥资9亿打造,硬件配置相当豪华的一所学校,预计是2024年秋季开学。

qh飞
qh飞

积分:-

注册时间:-

8楼
2023-01-03 10:05:23 来自Android手机客户端
优点:感觉价格是比较敏感的了,中大户型感觉还可以,感觉大面积先卖完,部分还是可以看到海景的,读书接送小朋友也比较方便。

缺点:边上有一个变电站,但是是公园式的,去地铁有点距离,商业方面也有点距离,部分户型有些噪音。
家在星空
家在星空

积分:-

注册时间:-

9楼
2023-01-03 10:09:22 来自Android手机客户端
经常找群的同学,搜索名字加入(如没有的可以私聊)

南山南32
南山南32

积分:-

注册时间:-

10楼
2023-01-03 10:15:52
B2户型116的还可以看海呢?

B3横厅116平3房2厅2卫感觉有点噪音,但好像也可以看海
深南大道_科技CBD
深南大道_科技CBD

积分:-

注册时间:-

11楼
2023-01-03 10:44:15
.
路人球迷甲
路人球迷甲

积分:-

注册时间:-

12楼
2023-01-03 19:36:35 来自Android手机客户端
三湾的户型同质化太严重了。
一切顺利稳妥
一切顺利稳妥

积分:-

注册时间:-

13楼
2023-01-04 12:50:25 来自Android手机客户端
留那么多能搭板的位置?
风_kid
风_kid

积分:-

注册时间:-

14楼
2023-01-07 23:19:19 来自iPhone客户端
上空区域想象空间很大
waywayshi
waywayshi

积分:-

注册时间:-

15楼
2023-01-08 19:13:35 来自Android手机客户端
看不了
引用南山南32的发言:
B2户型116的还可以看海呢?

B3横厅116平3房2厅2卫感觉有点噪音,但好像也可以看海
深南大道_科技CBD
深南大道_科技CBD

积分:-

注册时间:-

16楼
2023-01-09 09:21:56

路人球迷甲
路人球迷甲

积分:-

注册时间:-

17楼
2023-01-09 16:42:39 来自Android手机客户端
116143户型好,但东南朝向看不到海。这个盘不是地铁盘,适合开车出行。对自住的是个问题。
我有一颗小星星
我有一颗小星星

积分:-

注册时间:-

18楼
2023-01-16 14:00:02 来自iPhone客户端
开卖了吗
客家大少
客家大少

积分:-

注册时间:-

19楼
2023-01-28 16:11:36 来自Android手机客户端
180的可以看到摩天轮吗
Mr简单生活
Mr简单生活

积分:-

注册时间:-

20楼
2023-02-21 15:35:46 来自iPhone客户端
变电站影响如何?
引用8楼楼主的发言:
优点:感觉价格是比较敏感的了,中大户型感觉还可以,感觉大面积先卖完,部分还是可以看到海景的,读书接送小朋友也比较方便。

缺点:边上有一个变电站,但是是公园式的,去地铁有点距离,商业方面也有点距离,部分户型有些噪音。
  • 插入图片

    支持一次选择9张图片上传(使用Ctrl、Shift选中);

    支持jpg、png、gif,单张图片不超过10M,png不超过1M,gif不超过300K。

    • 继续添加

  • 提到好友

3(16px)

楼主最近发表

相关帖子

    大家都在看

    下载家在深圳APP

    关注家在公众号