家在深圳,真实业主生活圈_房网论坛

0

|

6

较场尾山泽苑14层高,动工了(鹏庭苑)

飞鸽传信
飞鸽传信

积分:-

注册时间:-

主楼
2024-06-26 15:20:47
标签: 点击标签查看相关内容

较场尾山泽苑14层高,动工了(鹏庭苑)

深圳市大鹏新区大鹏办事处鹏城社区居民委员会开发建设的山泽苑项目位于深圳市大鹏新区大鹏办事处乌冲片区G16603-8007号宗地,用地面积7825.48平方米。深圳市规划和自然资源局大鹏管理局已于2024年6月21日核发了该项目《深圳市建设工程规划许可证》(建字第4403072024GG0129449号),共计3栋,计规定容积率建筑面积17210平方米,主要功能为住宅、商业、物业服务用房、社区菜市场、社区警务室。

分享
0
飞鸽传信
飞鸽传信

积分:-

注册时间:-

沙发
2024-06-26 15:21:55
山泽苑

飞鸽传信
飞鸽传信

积分:-

注册时间:-

板凳
2024-06-26 15:22:24
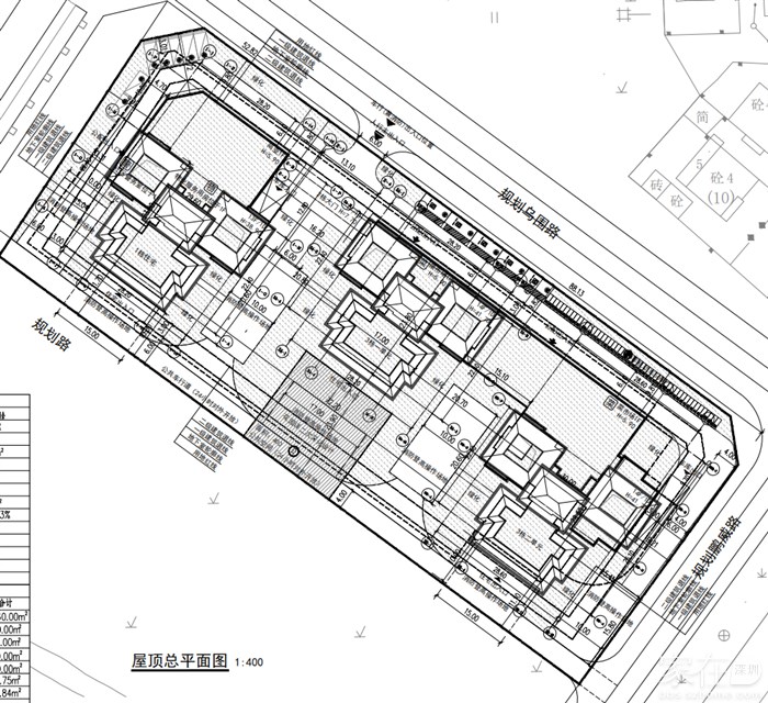
平面图

飞鸽传信
飞鸽传信

积分:-

注册时间:-

地板
2024-06-26 15:23:24
位置,感觉不是对市场的住宅


飞鸽传信
飞鸽传信

积分:-

注册时间:-

4楼
2024-06-26 15:25:02
之前空地的样子

飞鸽传信
飞鸽传信

积分:-

注册时间:-

5楼
2024-06-26 17:46:57
深圳市大鹏新区大鹏办事处鹏城社区居民委员会开发建设的鹏庭苑项目位于深圳市大鹏新区大鹏办事处乌冲片区G16603-8006号宗地,用地面积14539.57平方米,深圳市规划和自然资源局大鹏管理局已于2024年6月21日核发了该项目《深圳市建设工程规划许可证》(建字第4403072024GG0130418号),共计5栋,规定建筑面积35870平方米,主要功能为住宅、商业、文化活动室、社区老年人日间照料中心、幼儿园、物业服务用房。

飞鸽传信
飞鸽传信

积分:-

注册时间:-

6楼
2024-06-26 17:51:55
平面图



  • 插入图片

    支持一次选择9张图片上传(使用Ctrl、Shift选中);

    支持jpg、png、gif,单张图片不超过10M,png不超过1M,gif不超过300K。

    • 继续添加

  • 提到好友

3(16px)

楼主最近发表

相关帖子

    大家都在看

    下载家在深圳APP

    关注家在公众号