家在深圳,真实业主生活圈_房网论坛

0

|

13

阳光新都荟花园880套住宅,龙东地铁盘

飞鸽传信
飞鸽传信

积分:-

注册时间:-

主楼
2023-09-11 09:31:55
标签: 点击标签查看相关内容

阳光新都荟花园880套住宅,龙东地铁盘

项目名称:阳光新都荟花园(宗地号:G09415-0120)


开发商:深圳市海泽房地产有限公司开发建设的


项目位于龙岗区宝龙街道深汕路与龙盛街交汇处,建设用地面积29055.42平方米,用地性质为二类居住用地+商业用地,新建建筑2栋,建设规定总建筑面积为92300平方米,其中住宅72123平方米(含消防控制室72.4平方米、人防报警间10.61平方米)、保障性住房5000平方米、商业12482平方米、物业服务用房185平方米(含业主委员会办公室不小于20平方米)、再生资源回收站90平方米、环卫工人休息房20平方米、9班幼儿园2400平方米(占地面积2700平方米)。






分享
0
飞鸽传信
飞鸽传信

积分:-

注册时间:-

沙发
2023-09-11 09:35:03
总住宅974套,保障房94套,对外880套住宅,全是套内小于90平的


飞鸽传信
飞鸽传信

积分:-

注册时间:-

板凳
2023-09-11 09:36:13
工程名称:阳光新都荟花园桩基础工程

建设单位:深圳市海泽房地产开发有限公司

建设规模:29055.42平方米

建设地址:深圳市龙岗区深汕路与爱南路交叉口东北侧

合同价格:1000万元

设计单位:香港华艺设计顾问(深圳)有限公司

施工单位:深圳市粤地建设工程有限公司

监理单位:广东鸿业工程项目管理有限公司

合同开工日期:2023-05-30合同竣工日期:2023-12-30

飞鸽传信
飞鸽传信

积分:-

注册时间:-

地板
2023-09-11 09:42:21
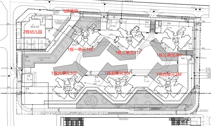
总共2栋,1栋分为六个单元,2栋幼儿园

1栋一单元16F
1栋二单元31F
1栋三单元31F
1栋四单元24F
1栋五单元30F
1栋六单元30F

飞鸽传信
飞鸽传信

积分:-

注册时间:-

4楼
2023-09-11 09:44:11
工程名称:阳光新都荟花园

建设单位:深圳市海泽房地产开发有限公司

建设规模:125262.76平方米

建设地址:龙岗区宝龙街道深汕路与爱南路交叉口东北侧

合同价格:26000万元

设计单位:香港华艺设计顾问(深圳)有限公司

施工单位:中天建设集团有限公司

监理单位:广东鸿业工程项目管理有限公司

合同开工日期:2023-09-05合同竣工日期:2024-12-30

飞鸽传信
飞鸽传信

积分:-

注册时间:-

5楼
2023-09-11 10:03:40
价格:新房约4字头,二手2.8-3.8万


飞鸽传信
飞鸽传信

积分:-

注册时间:-

6楼
2023-09-11 10:05:13
优点:地铁口物业,周边有不少空地

缺点:车位不足,面貌一般
星世纪
星世纪

积分:-

注册时间:-

7楼
2023-09-11 10:25:43
看了下是中海开发的?

布吉新区成立崛起
布吉新区成立崛起

积分:-

注册时间:-

8楼
2023-09-11 12:33:33 来自Android手机客户端
中信不是被中海收购了嘛?一期中信二期就中海啦
引用星世纪的发言:
看了下是中海开发的?
luke110097
luke110097

积分:-

注册时间:-

9楼
2023-09-12 09:58:38 来自m.szhome.com
旁边怡安的旧改小区也要动工了
布吉新区成立崛起
布吉新区成立崛起

积分:-

注册时间:-

10楼
2023-09-12 12:09:07 来自Android手机客户端
旁边怡安是哪里?
引用luke110097的发言:
旁边怡安的旧改小区也要动工了
szliuqj
szliuqj

积分:-

注册时间:-

11楼
2023-09-12 15:05:12
布吉想脱离龙岗想疯了
引用10楼布吉新区成立崛起的发言:
旁边怡安是哪里?
引用luke110097的发言:
旁边怡安的旧改小区也要动工了
布吉新区成立崛起
布吉新区成立崛起

积分:-

注册时间:-

12楼
2023-09-12 21:06:02 来自Android手机客户端
我能说我现在住中心城嘛。。。年少无知起的名字而已
引用szliuqj的发言:
布吉想脱离龙岗想疯了
引用10楼布吉新区成立崛起的发言:
旁边怡安是哪里?
引用luke110097的发言:
旁边怡安的旧改小区也要动工了
andyandy33
andyandy33

积分:-

注册时间:-

13楼
2023-09-19 12:05:42
目前现状,快速建设中。。。。

  • 插入图片

    支持一次选择9张图片上传(使用Ctrl、Shift选中);

    支持jpg、png、gif,单张图片不超过10M,png不超过1M,gif不超过300K。

    • 继续添加

  • 提到好友

3(16px)

楼主最近发表

相关帖子

    大家都在看

    下载家在深圳APP

    关注家在公众号