家在深圳,真实业主生活圈_房网论坛

0

|

5

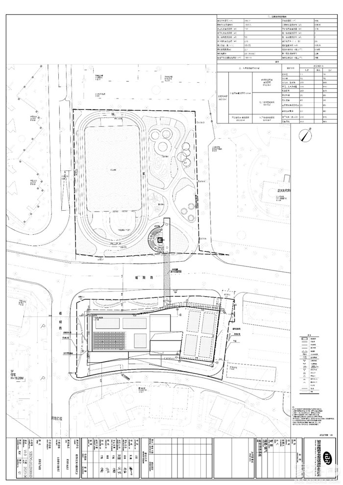
龙岗区首座社区级文体中心——红棉体育公园即将落户横岗!

CreepLemon
CreepLemon

积分:-

注册时间:-

主楼
2023-12-29 11:13:48
标签: 点击标签查看相关内容

龙岗区首座社区级文体中心——红棉体育公园即将落户横岗!

信息来源:羊城派


近日,深圳龙岗区首座社区级文体中心——红棉体育公园即将落位横岗街道六约北社区。目前,横岗街道红棉体育公园施工设计方案已出炉,筹建的相关程序正在加快推进。







分享
0
CreepLemon
CreepLemon

积分:-

注册时间:-

沙发
2023-12-29 11:14:21
据了解,红棉体育公园计划利用埔园路及梧桐路交会处的南北两块闲置用地进行建设,占地9695平方米,项目主要由室内的体育馆、室外的运动公园以及联系南北地块的一座跨街连廊三大部分组成,满足六约北社区乃至整个街道居民群众休闲与开展体育锻炼需求。
体育馆面积9665平方米,配备有游泳馆、健身房、羽毛球场及篮球场、儿童活动区,还有包含阅览区、培训教室、学习室等功能可变的1669平方米服务配套空间。运动公园设有七人制足球场、半场篮球场、200米慢跑道以及儿童活动区、健身器械、雨水花园等功能场所,配备景观绿化,满足群众开展户外体育运动与休闲需求。同时,利用架空层打造小型休闲空间,设置跨街连廊,有效引导跨埔园路慢行交通,营造特色景观和方便安全的慢行系统。

CreepLemon
CreepLemon

积分:-

注册时间:-

板凳
2023-12-29 11:14:38
项目充分利用街头小、散闲置空地,建成后不仅有效解决了因长期用地闲置造成的蚊虫滋生、消防隐患等问题,进一步提升土地利用价值,还作为先行示范区民生服务社区级精品项目,将有效补齐片区文体设施需求缺口,构建“十分钟文体生活圈”,为周边市民提供集运动、休闲、娱乐为一体的室内外场所,满足老年、中年、儿童等不同人群的活动需求。
未来,红棉体育公园将与横岗文体中心、大生体育馆、塘坑背水库绿道、航天农业科技园等项目串联成各具特色、功能互补的文体休闲网络,形成一个片区级-街道级-社区级全覆盖、复合多元的文体休闲民生配套格局,为横岗的宜居环境再添浓墨重彩的一笔。

一笑而过吧卡卡
一笑而过吧卡卡

积分:-

注册时间:-

地板
2023-12-29 15:45:37 来自iPhone客户端
什么时候开工
jxg537
jxg537

积分:-

注册时间:-

4楼
2023-12-31 09:32:13 来自m.szhome.com
说了这么久,就是没见开工……
CreepLemon
CreepLemon

积分:-

注册时间:-

5楼
2025-02-24 14:49:57
24年8月公布了红棉体育公园工程总平面图

  • 插入图片

    支持一次选择9张图片上传(使用Ctrl、Shift选中);

    支持jpg、png、gif,单张图片不超过10M,png不超过1M,gif不超过300K。

    • 继续添加

  • 提到好友

3(16px)

楼主最近发表

相关帖子

    大家都在看

    下载家在深圳APP

    关注家在公众号