家在深圳,真实业主生活圈_房网论坛

0

|

7

关于这个旧改变化的公示

葉Kami
葉Kami

积分:-

注册时间:-

主楼
2024-04-05 21:59:11 来自iPhone客户端
标签: 点击标签查看相关内容

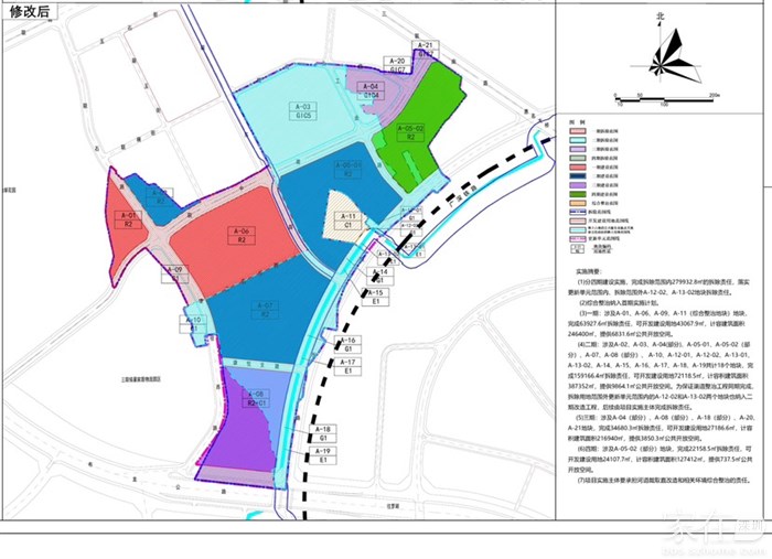
关于这个旧改变化的公示

其实也没有特别多的变化,就是三四期很多地方挪到二期去了,看来之前开发商的人说三四期会先建好去卖是真的



分享
0
葉Kami
葉Kami

积分:-

注册时间:-

沙发
2024-04-05 22:00:56 来自iPhone客户端
高清图在龙岗区政府在线搜
葉Kami
葉Kami

积分:-

注册时间:-

板凳
2024-06-07 17:58:47 来自iPhone客户端
自从这个公示以后就基本没动工了,一大堆空房子不拆,学校也不建,不知道是在摆烂还是在等政策
surechen
surechen

积分:-

注册时间:-

地板
2024-06-07 21:21:48 来自m.szhome.com
得开发商把现在的房子卖房,然后才有钱盖学校
引用2楼楼主的发言:
自从这个公示以后就基本没动工了,一大堆空房子不拆,学校也不建,不知道是在摆烂还是在等政策
葉Kami
葉Kami

积分:-

注册时间:-

4楼
2024-06-12 09:45:01 来自iPhone客户端
盖学校和卖房没关系
引用3楼surechen的发言:
得开发商把现在的房子卖房,然后才有钱盖学校
引用2楼楼主的发言:
自从这个公示以后就基本没动工了,一大堆空房子不拆,学校也不建,不知道是在摆烂还是在等政策
surechen
surechen

积分:-

注册时间:-

5楼
2024-06-12 10:50:43 来自m.szhome.com
关系大了,你以为学校是政府出钱盖吗?实际都是开发商配建,房子卖不出去,开发商没钱就拖着不盖学校!
引用4楼楼主的发言:
盖学校和卖房没关系
引用3楼surechen的发言:
得开发商把现在的房子卖房,然后才有钱盖学校
引用2楼楼主的发言:
自从这个公示以后就基本没动工了,一大堆空房子不拆,学校也不建,不知道是在摆烂还是在等政策
葉Kami
葉Kami

积分:-

注册时间:-

6楼
2024-07-23 12:57:21 来自iPhone客户端
你开心就好,我就喜欢你这种啥也不懂爱瞎说的样子
引用5楼surechen的发言:
关系大了,你以为学校是政府出钱盖吗?实际都是开发商配建,房子卖不出去,开发商没钱就拖着不盖学校!
引用4楼楼主的发言:
盖学校和卖房没关系
引用3楼surechen的发言:
得开发商把现在的房子卖房,然后才有钱盖学校
引用2楼楼主的发言:
自从这个公示以后就基本没动工了,一大堆空房子不拆,学校也不建,不知道是在摆烂还是在等政策
jy05501437
jy05501437

积分:-

注册时间:-

7楼
2025-11-03 18:27:31 来自m.szhome.com
今天松元头工业区突然这么多工作人员走来走去,好像我招商旧改和街道的,最近是不是有什么大动作?
  • 插入图片

    支持一次选择9张图片上传(使用Ctrl、Shift选中);

    支持jpg、png、gif,单张图片不超过10M,png不超过1M,gif不超过300K。

    • 继续添加

  • 提到好友

3(16px)

楼主最近发表

相关帖子

    大家都在看

    下载家在深圳APP

    关注家在公众号