家在深圳,真实业主生活圈_房网论坛

0

|

4

看看乐城三期1240套平面图

传信息
传信息

积分:-

注册时间:-

主楼
2024-12-11 09:24:40
标签: 点击标签查看相关内容

看看乐城三期1240套平面图

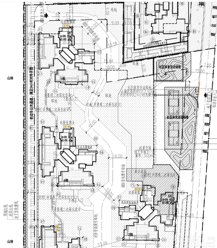
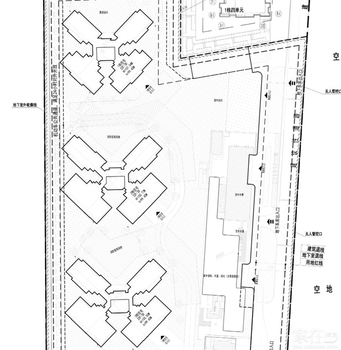
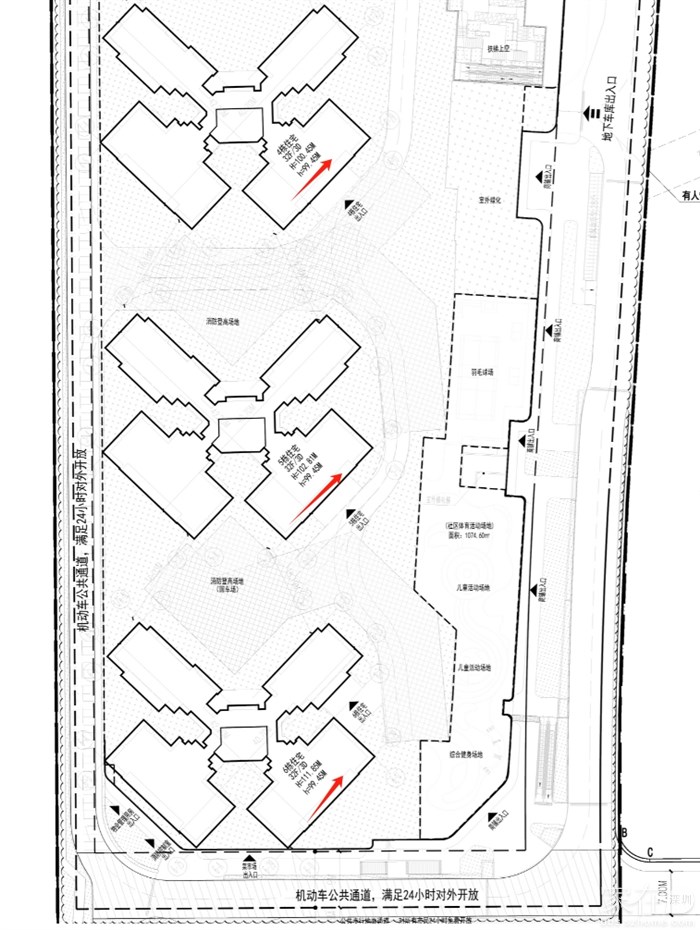
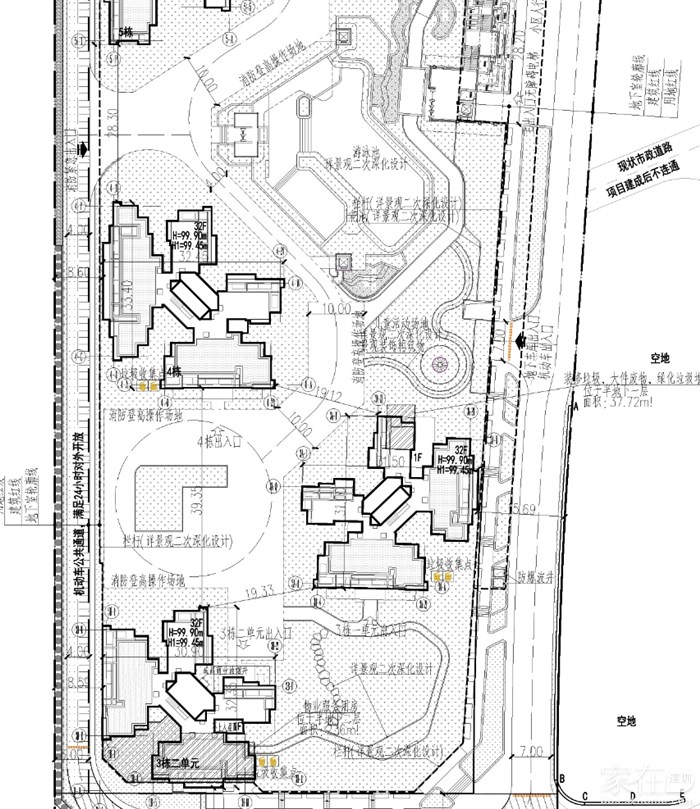
项目总占地面积约2.9万㎡,总建筑面积约15.87万㎡,容积率4.15,绿化率40%,共由7栋32F住宅组成,总规划1240户,停车位820个。







分享
0
传信息
传信息

积分:-

注册时间:-

沙发
2024-12-11 09:26:20
优点:近地铁,看公园

缺点:车位不足,购物不方便
传信息
传信息

积分:-

注册时间:-

板凳
2024-12-11 09:28:10
《颐安乐城》总共分5期开发,乐城1期2期都已交房乐城3期目前正在基桩阶段(也停了些日子),传乐城4期已经在拆平准备动工,乐城5期只有1栋楼,所以也不急。


龙岗飞看
龙岗飞看

积分:-

注册时间:-

地板
2024-12-11 09:32:05
这样看地块还不小哦





传信息
传信息

积分:-

注册时间:-

4楼
2024-12-11 09:35:03
华南师范大学附属乐城小学由现状24班小学改扩建为36班九年一贯制学校,新增12班初中,可增加600个学位。改扩建完成后,学校共可提供1680个学位。

  • 插入图片

    支持一次选择9张图片上传(使用Ctrl、Shift选中);

    支持jpg、png、gif,单张图片不超过10M,png不超过1M,gif不超过300K。

    • 继续添加

  • 提到好友

3(16px)

楼主最近发表

相关帖子

    大家都在看

    下载家在深圳APP

    关注家在公众号