家在深圳,真实业主生活圈_房网论坛

0

|

21

横岗-名居山河里进度备忘录

袁宏伟
袁宏伟

积分:-

注册时间:-

主楼
2024-10-07 08:55:18
标签: 点击标签查看相关内容

横岗-名居山河里进度备忘录

小区内进度,时间相机打卡










分享
0
袁宏伟
袁宏伟

积分:-

注册时间:-

沙发
2024-10-07 08:59:01
2024年10月7日,5、6、7栋可售的01户型124平,今天关闭样板间
前一天,有5栋、6栋天地楼层最后两套在售,目前暂停样板间
单独最后看了一眼样板间,7单元401






袁宏伟
袁宏伟

积分:-

注册时间:-

板凳
2024-10-07 09:01:28
127平四房,最后一套4楼,日照采光,东南朝向,上午10点观察




袁宏伟
袁宏伟

积分:-

注册时间:-

地板
2024-10-07 09:05:40
纠结买7栋、6栋、5栋的业主
7栋视觉宽敞,西侧有休憩广场,门口大广场园林,东侧有一片活动广场
6栋目前没有修好亮灯,东侧有树显得局促,正前方有篮球场
5栋目前没有修好亮灯,实测56栋和7栋一样大气,前有幼儿园,东侧是管理处办公楼,楼下有儿童活动场地,楼下是侧门可出
间距差距不大







袁宏伟
袁宏伟

积分:-

注册时间:-

4楼
2024-10-07 09:07:59
晨昏时分的7栋样板间











袁宏伟
袁宏伟

积分:-

注册时间:-

5楼
2024-10-11 10:27:09
10.9外围挡板已撤










袁宏伟
袁宏伟

积分:-

注册时间:-

6楼
2024-10-11 14:19:07
名居一期开始交房~






a454794924
a454794924

积分:-

注册时间:-

7楼
2024-10-11 15:01:33
可以帮忙看看六栋中下层05号房早上下午的阳台取光情况吗?阳台是否会明显看到变电站
袁宏伟
袁宏伟

积分:-

注册时间:-

8楼
2024-10-11 19:06:43
6楼3、4楼平看篮球场,05户型3房朝向,即便是低楼层,也都是朝外的,不会差。一点都看不到后面电站

引用7楼a454794924的发言:
可以帮忙看看六栋中下层05号房早上下午的阳台取光情况吗?阳台是否会明显看到变电站
袁宏伟
袁宏伟

积分:-

注册时间:-

9楼
2024-10-11 19:07:49
停车场面貌





袁宏伟
袁宏伟

积分:-

注册时间:-

10楼
2024-10-11 19:09:01
五栋旁侧门进度







袁宏伟
袁宏伟

积分:-

注册时间:-

11楼
2024-10-12 17:20:41
更正有误:当天交楼的是回迁房
一期交房在24年10月三天

引用6楼楼主的发言:
名居一期开始交房~

袁宏伟
袁宏伟

积分:-

注册时间:-

12楼
2024-10-13 20:50:55
、25、26,即将迎来一期 交付啦~





袁宏伟
袁宏伟

积分:-

注册时间:-

13楼
2024-10-13 20:53:38
夜拍名居山里,美好的开始















袁宏伟
袁宏伟

积分:-

注册时间:-

14楼
2024-10-13 20:54:23
夜拍名居山里,美好的开始2


















袁宏伟
袁宏伟

积分:-

注册时间:-

15楼
2024-10-13 20:56:03
还记得这颗蛋吗?顶一下吧,
有人在看吗,持续更新~持续关注~



a454794924
a454794924

积分:-

注册时间:-

16楼
2024-10-14 09:51:34
一期算是提前交付了吗?原本预期不是年底吗
袁宏伟
袁宏伟

积分:-

注册时间:-

17楼
2024-10-15 17:02:02
是的,提前交付。合同都是最晚,最保守的时间,新房一般都会提前
引用16楼a454794924的发言:
一期算是提前交付了吗?原本预期不是年底吗
袁宏伟
袁宏伟

积分:-

注册时间:-

18楼
2024-10-15 17:13:02
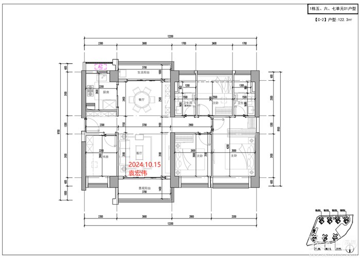
名居山河里,01户型124平通透双阳台户型鉴赏



袁宏伟
袁宏伟

积分:-

注册时间:-

19楼
2024-10-20 09:47:24
名居一角












袁宏伟
袁宏伟

积分:-

注册时间:-

20楼
2024-11-02 09:31:12
夜幕下名居山河里外围



















  • 插入图片

    支持一次选择9张图片上传(使用Ctrl、Shift选中);

    支持jpg、png、gif,单张图片不超过10M,png不超过1M,gif不超过300K。

    • 继续添加

  • 提到好友

3(16px)

楼主最近发表

相关帖子

    大家都在看

    下载家在深圳APP

    关注家在公众号