标签:
点击标签查看相关内容
占地24万平米——坪山龙湖新屋旧改已通过审批
好消息,今天看到坪山龙田街道龙湖新屋旧改规划已通过审批。
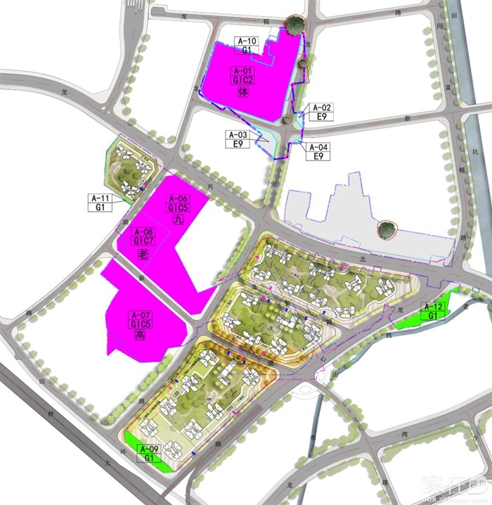
项目位于坪山区龙田街道,外环高速宝龙出入口与龙兴北路交会处东南侧。
规划进展:
2022年12月20日,坪山区城市更新和土地整备局发布该更新单元更新意愿的公示。
2022年12月21日,该更新单元被列入《2022年深圳市坪山区城市更新单元计划第六批计划》(草案)并进行公示。
2023年7月18日,坪山区城市更新和土地整备局发布该更新单元旧屋村认定范围的公示。
2024年2月24日,坪山区城市更新和土地整备局发布该更新单元规划(草案)的公示。
2024年6月25日,深圳市规划和自然资源坪山管理局发布消息,《坪山区龙田街道龙湖新屋片区城市更新单元规划》已经市城市规划委员会法定图则委员会2024年第43次会议审批并原则通过
![]()
小区配套:
更新单元用地面积247324.1平方米
拆除范围用地面积187875.8平方米
开发建设用地面积101078.2平方米(含划入零星用地3000.0平方米)
住宅484139平方米(含公共租赁住房51286平方米)
商业、办公及旅馆业建筑25000平方米(含母婴室50平方米、社区菜市场1000平方米)
公共配套设施(含地下)20800平方米(含12班幼儿园4010平方米、占地面积3600平方米
9班幼儿园3150平方米、占地面积2700平方米,托育机构(2处)1500平方米
社区警务室50平方米,社区管理用房300平方米,社区服务中心600平方米,社区党群服务中心650平方米
文化活动室1500平方米,社区老年人日间照料中心1500平方米,社区健康服务中心1400平方米,公交首末站4300平方米,公共充电站1100平方米(不少于16个快速充电位),片区汇聚机房150平方米,邮政所100平方米,小型垃圾转运站<地下>350平方米,再生资源回收站60平方米,公共厕所60平方米,环卫工人作息场所20平方米)。
另配建社区体育活动场地(3处)占地4200平方米,社区儿童游戏场地(4处)占地3300平方米。
看规划分四期开发,其中一期为公租房。
![]()
![]()
项目位于坪山区龙田街道,外环高速宝龙出入口与龙兴北路交会处东南侧。
规划进展:
2022年12月20日,坪山区城市更新和土地整备局发布该更新单元更新意愿的公示。
2022年12月21日,该更新单元被列入《2022年深圳市坪山区城市更新单元计划第六批计划》(草案)并进行公示。
2023年7月18日,坪山区城市更新和土地整备局发布该更新单元旧屋村认定范围的公示。
2024年2月24日,坪山区城市更新和土地整备局发布该更新单元规划(草案)的公示。
2024年6月25日,深圳市规划和自然资源坪山管理局发布消息,《坪山区龙田街道龙湖新屋片区城市更新单元规划》已经市城市规划委员会法定图则委员会2024年第43次会议审批并原则通过
小区配套:
更新单元用地面积247324.1平方米
拆除范围用地面积187875.8平方米
开发建设用地面积101078.2平方米(含划入零星用地3000.0平方米)
住宅484139平方米(含公共租赁住房51286平方米)
商业、办公及旅馆业建筑25000平方米(含母婴室50平方米、社区菜市场1000平方米)
公共配套设施(含地下)20800平方米(含12班幼儿园4010平方米、占地面积3600平方米
9班幼儿园3150平方米、占地面积2700平方米,托育机构(2处)1500平方米
社区警务室50平方米,社区管理用房300平方米,社区服务中心600平方米,社区党群服务中心650平方米
文化活动室1500平方米,社区老年人日间照料中心1500平方米,社区健康服务中心1400平方米,公交首末站4300平方米,公共充电站1100平方米(不少于16个快速充电位),片区汇聚机房150平方米,邮政所100平方米,小型垃圾转运站<地下>350平方米,再生资源回收站60平方米,公共厕所60平方米,环卫工人作息场所20平方米)。
另配建社区体育活动场地(3处)占地4200平方米,社区儿童游戏场地(4处)占地3300平方米。
看规划分四期开发,其中一期为公租房。
本帖于2025-06-26 11:47 被楼主编辑过




粤公网安备 44030402000760号
