家在深圳,真实业主生活圈_房网论坛

0

|

9

香港中文大学(深圳)医学院参数

龙中小红
龙中小红

积分:-

注册时间:-

主楼
2024-11-05 10:58:32
标签: 点击标签查看相关内容

香港中文大学(深圳)医学院参数

申报香港中文大学(深圳)医学院项目南园的建设工程规划许可证核发





分享
0
龙中小红
龙中小红

积分:-

注册时间:-

沙发
2024-11-05 10:58:55
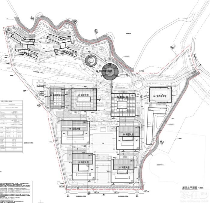
 项目总平面图.



BigBoy
BigBoy

积分:-

注册时间:-

板凳
2024-11-05 17:40:07
3000张床位,1258个车位?会不会少一些?非机动车位是给电驴准备的吧,1324个车位。感觉少点啊
tzdhappy
tzdhappy

积分:-

注册时间:-

地板
2024-11-06 09:58:20
这是医学院,不是医院
引用2楼BigBoy的发言:
3000张床位,1258个车位?会不会少一些?非机动车位是给电驴准备的吧,1324个车位。感觉少点啊
Leoyang27
Leoyang27

积分:-

注册时间:-

4楼
2024-11-06 10:27:12 来自Android手机客户端
学费太贵,一般家庭的孩子考上也不一定能读得起
BigBoy
BigBoy

积分:-

注册时间:-

5楼
2024-11-06 10:29:11
擦,居然理解错了,多谢指明
引用3楼tzdhappy的发言:
这是医学院,不是医院
引用2楼BigBoy的发言:
3000张床位,1258个车位?会不会少一些?非机动车位是给电驴准备的吧,1324个车位。感觉少点啊
美国不过如此
美国不过如此

积分:-

注册时间:-

6楼
2024-11-06 11:22:15
未来中国大陆地区最强医学院。
工作不忙者
工作不忙者

积分:-

注册时间:-

7楼
2024-11-06 12:19:37
刚准备夸看的仔细

引用2楼BigBoy的发言:
3000张床位,1258个车位?会不会少一些?非机动车位是给电驴准备的吧,1324个车位。感觉少点啊
圣殿骑士
圣殿骑士

积分:-

注册时间:-

8楼
2024-11-12 10:53:31 来自Android手机客户端
港中大跟国外的学校一样,都是实行奖学金制。只要你小孩够努力,不用担心学费的问题。
引用Leoyang27的发言:
学费太贵,一般家庭的孩子考上也不一定能读得起
sod0003
sod0003

积分:-

注册时间:-

9楼
2024-11-15 23:40:34 来自iPhone客户端
感谢徐扬生校长
  • 插入图片

    支持一次选择9张图片上传(使用Ctrl、Shift选中);

    支持jpg、png、gif,单张图片不超过10M,png不超过1M,gif不超过300K。

    • 继续添加

  • 提到好友

3(16px)

楼主最近发表

相关帖子

    大家都在看

    下载家在深圳APP

    关注家在公众号