家在深圳,真实业主生活圈_房网论坛

0

|

7

中医院旁——美域蓝湾阁溪府510套住宅

飞鸽传信
飞鸽传信

积分:-

注册时间:-

主楼
2024-01-18 11:33:51
标签: 点击标签查看相关内容

中医院旁——美域蓝湾阁溪府510套住宅

工程名称:美域蓝湾阁溪府(1栋、2栋、3栋)桩基础及主体工程

建设单位:深圳市黄阁坑股份合作公司大围分公司,深圳市蓝湾房地产开发有限公司

建设规模:62432.77平方米

建设地址:深圳市龙岗区龙飞大道与清辉路交汇处

设计单位:深圳市立方都市工程设计有限公司

施工单位:深圳建安置业工程有限公司

监理单位:深圳市恒大建设监理有限公司




分享
0
飞鸽传信
飞鸽传信

积分:-

注册时间:-

沙发
2024-01-18 11:34:23
合同开工日期:2023-12-10合同竣工日期:2025-09-30

飞鸽传信
飞鸽传信

积分:-

注册时间:-

板凳
2024-01-18 11:39:53
项目名称:美域蓝湾阁溪府

用地面积:12676.13平

建设面积:62432.77平

容积率:3.47

停车位:510辆

户数:510 户,套内小于90平 422 户,占比82.75%。



飞鸽传信
飞鸽传信

积分:-

注册时间:-

地板
2024-01-18 11:40:56
建设工程规划许可证

飞鸽传信
飞鸽传信

积分:-

注册时间:-

4楼
2024-01-18 11:43:51
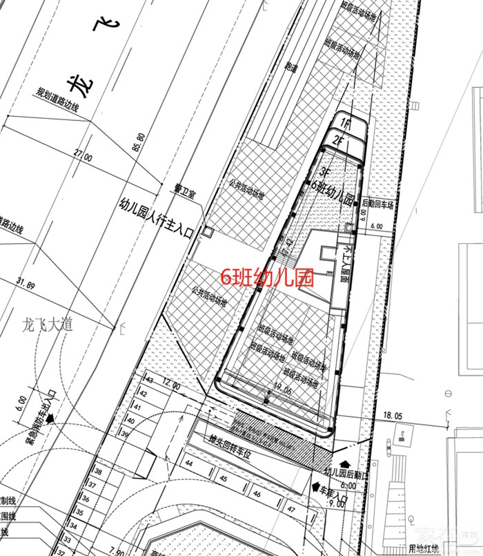
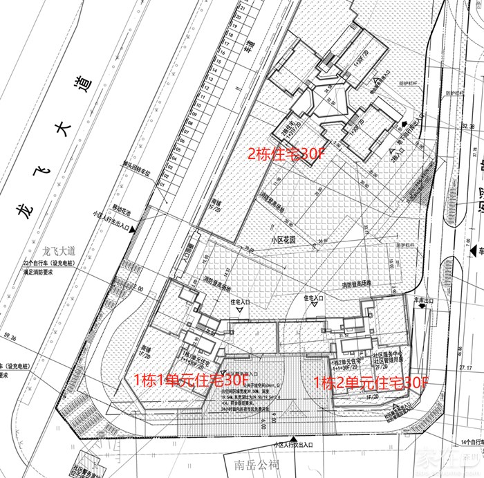
3栋30层的住宅和6班幼儿园





飞鸽传信
飞鸽传信

积分:-

注册时间:-

5楼
2024-01-18 11:46:29
优点:地铁距离还好,容积率低,车位1:1,去学校和医院方便

缺点:小区比较小,在交叉口上
飞鸽传信
飞鸽传信

积分:-

注册时间:-

6楼
2024-01-18 11:48:27
价格参考:二手指导未来城5.35万,新房泰瑞府5.2万
cipher186
cipher186

积分:-

注册时间:-

7楼
2024-01-18 12:32:44 来自Android手机客户端
不是回迁吗
  • 插入图片

    支持一次选择9张图片上传(使用Ctrl、Shift选中);

    支持jpg、png、gif,单张图片不超过10M,png不超过1M,gif不超过300K。

    • 继续添加

  • 提到好友

3(16px)

楼主最近发表

相关帖子

    大家都在看

    下载家在深圳APP

    关注家在公众号