标签:
点击标签查看相关内容
宝龙的润美家园710套
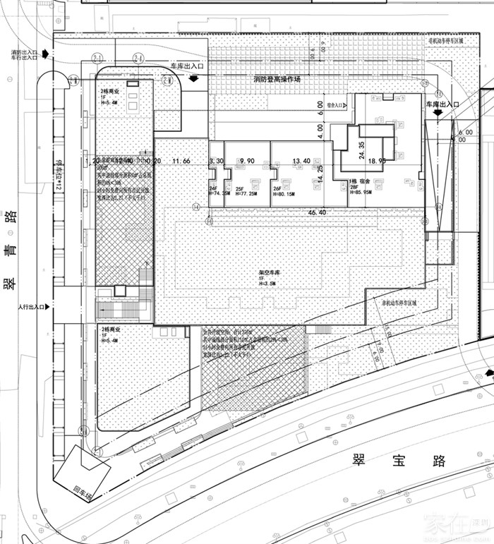
润美家园位于龙岗区宝龙街道宝翠路和清宝路交叉口东北侧,用地面积7512.96平方米。用地单位为深圳市润深房地产有限公司,深圳市规划和自然资源局龙岗管理局已核发该项目的《深圳市建设工程规划许可证》(建字第4403072023GG0145374号)。
建建筑 2 栋(1 栋宿舍 28F/85.95 米、2 栋商业 1F/5.4 米),总建筑面积 29177.78 平方米,其中计容建筑面积 23828.31平方米(宿舍 19936 平方米、商业 1000 平方米、物业服务用房 100 平方米、架空车库核增 1919.43 平方米、架空绿化休闲核增 872.88 平方米),不计容积率建筑面积 5349.47 平方米(车库 3347.45 平方米、设备用房 1952.39 平方米、地下室出地面楼梯 20.88 平方米、地下室风井 28.75 平方米)。机动车停车位 142 个(含充电桩 42 个),地上自行车停车位 414 辆,用地南侧设计 376 平方米公共开放空间,西侧商业屋面设计 300 平方米儿童游戏活动场地,以上开放空间均 24 小时无条件供公众使用。
建建筑 2 栋(1 栋宿舍 28F/85.95 米、2 栋商业 1F/5.4 米),总建筑面积 29177.78 平方米,其中计容建筑面积 23828.31平方米(宿舍 19936 平方米、商业 1000 平方米、物业服务用房 100 平方米、架空车库核增 1919.43 平方米、架空绿化休闲核增 872.88 平方米),不计容积率建筑面积 5349.47 平方米(车库 3347.45 平方米、设备用房 1952.39 平方米、地下室出地面楼梯 20.88 平方米、地下室风井 28.75 平方米)。机动车停车位 142 个(含充电桩 42 个),地上自行车停车位 414 辆,用地南侧设计 376 平方米公共开放空间,西侧商业屋面设计 300 平方米儿童游戏活动场地,以上开放空间均 24 小时无条件供公众使用。





粤公网安备 44030402000760号
