家在深圳,真实业主生活圈_房网论坛

0

|

7

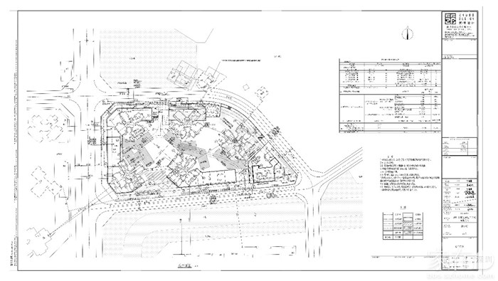
保利G01126-0090地块有新名保利静安府

龙岗飞看
龙岗飞看

积分:-

注册时间:-

主楼
2023-01-29 10:10:14
标签: 点击标签查看相关内容

保利G01126-0090地块有新名保利静安府

重点毛坯限价3.95万



分享
0
龙岗飞看
龙岗飞看

积分:-

注册时间:-

沙发
2023-01-29 10:14:56
项目由5栋住宅+1栋幼儿园组成,总户数1050户(其中保障房130户)对外920套
zihanlu
zihanlu

积分:-

注册时间:-

板凳
2023-01-29 20:41:42 来自m.szhome.com
这片地很小,能建五栋吗?
佐罗987
佐罗987

积分:-

注册时间:-

地板
2023-02-10 15:06:51



zihanlu
zihanlu

积分:-

注册时间:-

4楼
2023-02-13 09:06:47
太拥挤了。
J20221988
J20221988

积分:-

注册时间:-

5楼
2023-02-16 16:51:55
这个到底是在哪里的盘
专业设计与施工
专业设计与施工

积分:-

注册时间:-

6楼
2024-07-17 12:03:31
用户被禁言
lucky001huang
lucky001huang

积分:-

注册时间:-

7楼
2024-07-18 14:30:55

  • 插入图片

    支持一次选择9张图片上传(使用Ctrl、Shift选中);

    支持jpg、png、gif,单张图片不超过10M,png不超过1M,gif不超过300K。

    • 继续添加

  • 提到好友

3(16px)

楼主最近发表

相关帖子

    大家都在看

    下载家在深圳APP

    关注家在公众号