家在深圳,真实业主生活圈_房网论坛

0

|

65

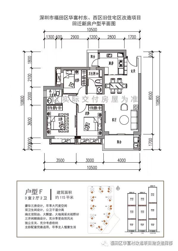
华富村东西区棚改回迁选房115㎡户型三选一怎么选?

我吾做擦鞋仔
我吾做擦鞋仔

积分:-

注册时间:-

主楼
2023-02-03 17:40:28
标签: 点击标签查看相关内容

华富村东西区棚改回迁选房115㎡户型三选一怎么选?




















分享
0
夜里睡不着
夜里睡不着

积分:-

注册时间:-

沙发
2023-02-04 06:14:46 来自Android手机客户端
密密麻麻的钢筋水泥鸽子笼,奇丑无比,毫无居住性可言。
Meledi
Meledi

积分:-

注册时间:-

板凳
2023-02-06 09:00:45 来自iPhone客户端
除了主卧室,其他房间那么小怎么住人呢。
自己1993
自己1993

积分:-

注册时间:-

地板
2023-02-06 09:35:37 来自iPhone客户端
不错
福福宝贝
福福宝贝

积分:-

注册时间:-

4楼
2023-02-06 09:42:02
选景色好的,景观值钱
我吾做擦鞋仔
我吾做擦鞋仔

积分:-

注册时间:-

5楼
2023-02-06 10:03:26
第一个南北通透的户型,均没有放在西边第一排看公园的景观,景观跟户型只能二选一你怎么选?
引用1楼万里千里的发言:
傻子都知道选第一个
Meledi
Meledi

积分:-

注册时间:-

6楼
2023-02-06 11:36:26 来自iPhone客户端
像户型1最少也得是150面积才行否则就是螺丝壳里做道场
宁静致远2000
宁静致远2000

积分:-

注册时间:-

7楼
2023-02-07 21:34:54
不错,今年几月交房
宁静致远2000
宁静致远2000

积分:-

注册时间:-

8楼
2023-02-08 10:05:17
请问楼主今年几月份交房
引用楼主的发言:


我吾做擦鞋仔
我吾做擦鞋仔

积分:-

注册时间:-

9楼
2023-02-09 10:10:43
今年9月份交房
hjh002
hjh002

积分:-

注册时间:-

10楼
2023-02-09 10:28:33
选8-10栋 F型
休息一下
休息一下

积分:-

注册时间:-

11楼
2023-02-09 11:31:07 来自iPhone客户端
5栋,6栋最好
伊欧利亚
伊欧利亚

积分:-

注册时间:-

12楼
2023-02-09 13:09:23 来自iPhone客户端
这种超高层住宅三梯五户相当于那些二、三十层小区的三梯十户,要是四梯五户未来等电梯就容易很多
宁静致远2000
宁静致远2000

积分:-

注册时间:-

13楼
2023-02-09 22:38:26
老房子换新房大房真好
引用11楼楼主的发言:
今年9月份交房
我吾做擦鞋仔
我吾做擦鞋仔

积分:-

注册时间:-

14楼
2023-02-10 15:35:28
所以东南朝向要比1-5栋的西南朝向看公园更好吗?觉得朝向比景观重要吗?
引用12楼hjh002的发言:
选8-10栋 F型
hjh002
hjh002

积分:-

注册时间:-

15楼
2023-02-13 09:46:24
我觉得朝向比景观重要. 花园都在公园里了, 要看景观下楼看个够. 朝向好的房子,一早起床心情都大好.
引用16楼楼主的发言:
所以东南朝向要比1-5栋的西南朝向看公园更好吗?觉得朝向比景观重要吗?
引用12楼hjh002的发言:
选8-10栋 F型
车马相士将
车马相士将

积分:-

注册时间:-

16楼
2023-02-18 17:27:52 来自iPhone客户端
请问楼主类似棚改是不是可以自己加钱选更大的户型?
我吾做擦鞋仔
我吾做擦鞋仔

积分:-

注册时间:-

17楼
2023-02-20 11:03:43
是的,除这个项目的棚改(因为在棚改政策前)可以增购25平方,其中13平方按成本价9千,12平方按市场评估价9折。其余棚改项目如南华村、华富北(棚改政策后)都只能按周边安居型商品房价格(约市场价4折)加10平方。
引用18楼车马相士将的发言:
请问楼主类似棚改是不是可以自己加钱选更大的户型?
感到太大
感到太大

积分:-

注册时间:-

18楼
2023-02-21 01:37:37 来自iPhone客户端
西晒会让你爆炸
我吾做擦鞋仔
我吾做擦鞋仔

积分:-

注册时间:-

19楼
2023-02-21 10:40:58
确实,景观跟东南朝向不可兼得,不过说是西南朝向做了隔热板
引用20楼感到太大的发言:
西晒会让你爆炸
感到太大
感到太大

积分:-

注册时间:-

20楼
2023-02-21 11:36:02 来自iPhone客户端
没有什么用 而且西南这个2户挨一起 隔音也是问题
引用21楼楼主的发言:
确实,景观跟东南朝向不可兼得,不过说是西南朝向做了隔热板
引用20楼感到太大的发言:
西晒会让你爆炸
  • 插入图片

    支持一次选择9张图片上传(使用Ctrl、Shift选中);

    支持jpg、png、gif,单张图片不超过10M,png不超过1M,gif不超过300K。

    • 继续添加

  • 提到好友

3(16px)

楼主最近发表

相关帖子

    大家都在看

    下载家在深圳APP

    关注家在公众号