家在深圳,真实业主生活圈_房网论坛

0

|

3

256套邻里间家园平面图

ba尖多任
ba尖多任

积分:-

注册时间:-

主楼
2023-03-28 15:24:15
标签: 点击标签查看相关内容

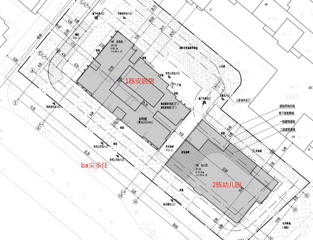
256套邻里间家园平面图

邻里间家园项目(宗地号:A006-0939)位于新安街道甲岸路和翻身路交汇处,宗地建设用地面积为3961.07平方米。我局于2023年3月核发该项目《建设工程规划许可证》(深规划资源建许字BA-2023-0040号)。

分享
0
ba尖多任
ba尖多任

积分:-

注册时间:-

沙发
2023-03-28 15:27:09
有2栋,其中有幼儿园


ba尖多任
ba尖多任

积分:-

注册时间:-

板凳
2023-03-28 15:31:43
效果图

西高东低
西高东低

积分:-

注册时间:-

地板
2023-03-30 14:11:27 来自m.szhome.com
人才安居吗?
  • 插入图片

    支持一次选择9张图片上传(使用Ctrl、Shift选中);

    支持jpg、png、gif,单张图片不超过10M,png不超过1M,gif不超过300K。

    • 继续添加

  • 提到好友

3(16px)

楼主最近发表

相关帖子

    大家都在看

    下载家在深圳APP

    关注家在公众号