家在深圳,真实业主生活圈_房网论坛

0

|

5

新桥东甘霖苑和新桥东恒安苑

新桥之梦
新桥之梦

积分:-

注册时间:-

主楼
2023-09-28 09:13:59
标签: 点击标签查看相关内容

新桥东甘霖苑和新桥东恒安苑

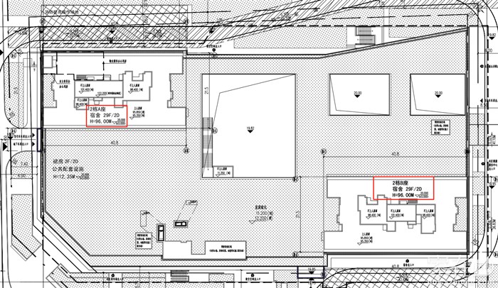
新桥东甘霖苑项目位于新桥街道恒丰路南面荔枝仔路西面,宗地号:A325-0233,由深圳市宝实置业有限公司开发。项目用地面积21128.47㎡、总建筑面积88818.69㎡(产业配套用房建筑面积59647m[含小型商业服务设施2592m,配套宿舍57055m(含业主委员会办公用房 20m,物业服务办公用房 12㎡)]。公共配套设施(含地下)3740m’(含社区菜市场 1500m、公共厕所 120m、环卫工人休息房 20m、再生资源回收站 100㎡、文化活动室2000m))。规划机动车停车位364辆,非机动车位1165(地上407个,地下758个)





分享
0
新桥之梦
新桥之梦

积分:-

注册时间:-

沙发
2023-09-28 09:14:56

新桥东甘霖苑





新桥之梦
新桥之梦

积分:-

注册时间:-

板凳
2023-09-28 09:17:47
新桥东恒安苑(A325-0228)总建筑面积72719.21㎡,宿舍建筑 42208㎡,用地位置宝安区新桥街道洪田村路东面黄云路南面





新桥之梦
新桥之梦

积分:-

注册时间:-

地板
2023-09-28 09:18:11
新桥东恒安苑

新桥之梦
新桥之梦

积分:-

注册时间:-

4楼
2023-09-28 09:20:06
位置



ba尖多任
ba尖多任

积分:-

注册时间:-

5楼
2023-09-28 10:37:33
宿舍。。。
  • 插入图片

    支持一次选择9张图片上传(使用Ctrl、Shift选中);

    支持jpg、png、gif,单张图片不超过10M,png不超过1M,gif不超过300K。

    • 继续添加

  • 提到好友

3(16px)

楼主最近发表

相关帖子

    大家都在看

    下载家在深圳APP

    关注家在公众号