家在深圳,真实业主生活圈_房网论坛

0

|

7

13号线旁,深铁阅洺境花园1348套新宅

光之家
光之家

积分:-

注册时间:-

主楼
2025-05-09 10:23:15
标签: 点击标签查看相关内容

13号线旁,深铁阅洺境花园1348套新宅

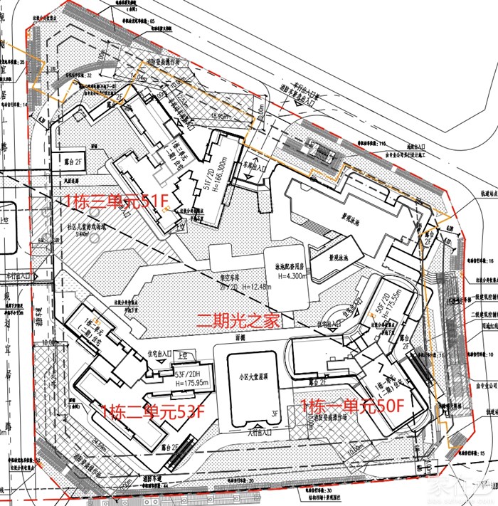
 深圳市地铁集团有限公司建设的“阅洺境花园”项目(宗地号:A614-0522)位于光明区凤凰街道东明大道与松白路交汇处东北侧。

总1734户,其中:保障房:386户,商品房:1348户

分享
0
光之家
光之家

积分:-

注册时间:-

沙发
2025-05-09 10:24:35
一期总1184户其中:保障房:386户,商品房:798户

光之家
光之家

积分:-

注册时间:-

板凳
2025-05-09 10:25:59
二期550户 其中:商品房:550





光之家
光之家

积分:-

注册时间:-

地板
2025-05-09 10:26:27
深铁阅洺境总用地面积39078.97㎡,总建筑面积约33万㎡,项目共分一、二期,东西两个地块开发,规划7栋超高层住宅,其中住宅面积199290㎡,商业8840㎡,幼儿园3850㎡,后期将结合公明车辆段上盖打造TOD大城。

光之家
光之家

积分:-

注册时间:-

4楼
2025-05-09 10:29:46
一二期平面图



桃白白
桃白白

积分:-

注册时间:-

5楼
2025-05-11 15:20:59 来自iPhone客户端
tangpeng52
tangpeng52

积分:-

注册时间:-

6楼
2025-05-18 09:39:53 来自m.szhome.com
什么时候开盘
五园八年
五园八年

积分:-

注册时间:-

7楼
2025-05-26 17:28:23 来自Android手机客户端
楼下就是地铁,比旁边润宏城的位置要好,花园稍小
  • 插入图片

    支持一次选择9张图片上传(使用Ctrl、Shift选中);

    支持jpg、png、gif,单张图片不超过10M,png不超过1M,gif不超过300K。

    • 继续添加

  • 提到好友

3(16px)

楼主最近发表

相关帖子

    大家都在看

    下载家在深圳APP

    关注家在公众号