家在深圳,真实业主生活圈_房网论坛

0

|

2

480户,振业天境云庭还在挖深坑

今年上车
今年上车

积分:-

注册时间:-

主楼
2024-03-12 11:18:53
标签: 点击标签查看相关内容

480户,振业天境云庭还在挖深坑

从航拍镜头下看到振业天境云庭不迷在挖深坑,限价4.9万。
边上的安联尚璟已经是现楼了。

大家说说振业天境云庭会比安联卖的好点吗?










分享
0
今年上车
今年上车

积分:-

注册时间:-

沙发
2024-03-12 11:24:08
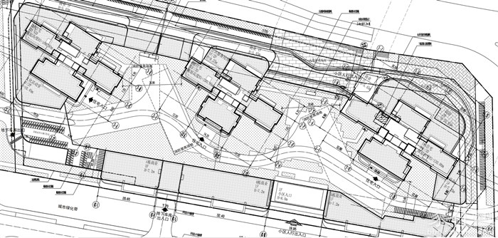
看平面图3栋住宅

商品房375户
保障房105户







smile2020xxx
smile2020xxx

积分:-

注册时间:-

板凳
2024-03-12 16:19:25
现在这个市场主看户型和价格,但是第一排还是有一定优势的
  • 插入图片

    支持一次选择9张图片上传(使用Ctrl、Shift选中);

    支持jpg、png、gif,单张图片不超过10M,png不超过1M,gif不超过300K。

    • 继续添加

  • 提到好友

3(16px)

楼主最近发表

相关帖子

    大家都在看

    下载家在深圳APP

    关注家在公众号