家在深圳,真实业主生活圈_房网论坛

0

|

5

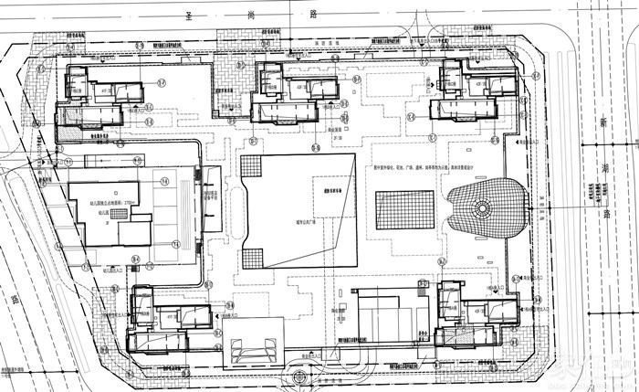
都市茗荟花园(二期)总平面图修改

宝中新手
宝中新手

积分:-

注册时间:-

主楼
2024-08-22 10:13:27
标签: 点击标签查看相关内容

都市茗荟花园(二期)总平面图修改

老传要来了,还在修改呢,别老来。。。。




分享
0
宝中新手
宝中新手

积分:-

注册时间:-

沙发
2024-08-22 10:15:28
平面位置


宝中新手
宝中新手

积分:-

注册时间:-

板凳
2024-08-22 10:16:14
说没啥花园,都是公共的多

广东Lawrence8
广东Lawrence8

积分:-

注册时间:-

地板
2024-08-22 10:39:52 来自m.szhome.com
终于要拿出来砸盘了?
八级警员
八级警员

积分:-

注册时间:-

4楼
2024-08-27 11:51:46
户型过时了,得房率又没有优势。。。。。。。。。
专业设计与施工
专业设计与施工

积分:-

注册时间:-

5楼
2024-09-12 12:30:24
用户被禁言
  • 插入图片

    支持一次选择9张图片上传(使用Ctrl、Shift选中);

    支持jpg、png、gif,单张图片不超过10M,png不超过1M,gif不超过300K。

    • 继续添加

  • 提到好友

3(16px)

楼主最近发表

相关帖子

    大家都在看

    下载家在深圳APP

    关注家在公众号