家在深圳,真实业主生活圈_房网论坛

0

|

2

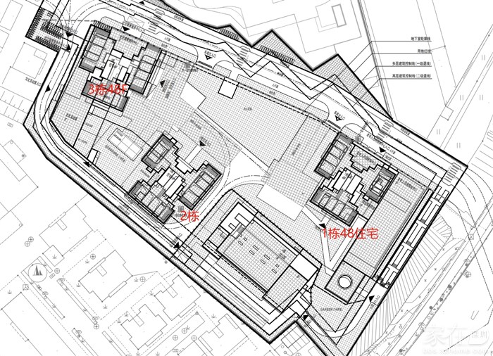
安澜雅苑平面图和许可证,851套住宅

龙福华梅
龙福华梅

积分:-

注册时间:-

主楼
2025-02-12 17:00:25
标签: 点击标签查看相关内容

安澜雅苑平面图和许可证,851套住宅

建设项目名称 安澜雅苑
建 设 位 置 龙华区观澜街道街道办事处辖区
计规定容积率建筑面积 73447.00㎡

分享
0
龙福华梅
龙福华梅

积分:-

注册时间:-

沙发
2025-02-12 17:02:23
851户(含151户保障房)对外700套


龙福华梅
龙福华梅

积分:-

注册时间:-

板凳
2025-02-12 17:02:40

3栋住宅

  • 插入图片

    支持一次选择9张图片上传(使用Ctrl、Shift选中);

    支持jpg、png、gif,单张图片不超过10M,png不超过1M,gif不超过300K。

    • 继续添加

  • 提到好友

3(16px)

楼主最近发表

相关帖子

    大家都在看

    下载家在深圳APP

    关注家在公众号