标签:
点击标签查看相关内容
锦绣时代广场——伟特工业区旧改新名子
看到锦绣时代广场(原:伟特工业区城市更新单元)平面图公示了。
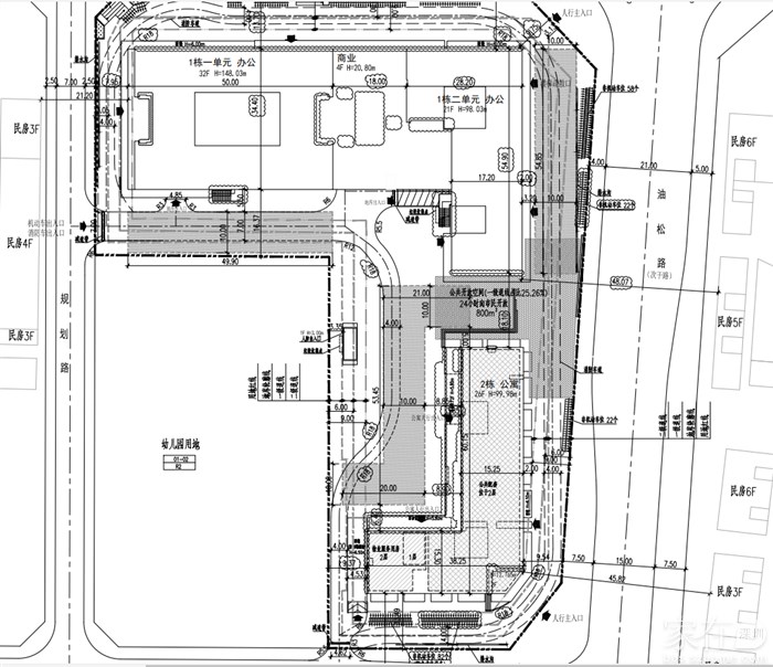
该项目位于民治街道龙峰一路以南,油松路与油联路交汇处西北角,更新单元用地面积20871.7平方米,拆除范围用地面积19982.9平方米,其中开发建设用地面积13175.1平方米。规划容积为89765平方米,其中商业、办公及旅馆业建筑62835平方米,商务公寓25630平方米(含人才公寓3850平方米),公共配套设施1300平方米(含增配社区级公共配套用房1300平方米)。
未来打造9万平米综合体。
深圳市鸿龙泰投资有限公司现向我局申请变更建设工程规划许可证,由于核增建筑面积、非机动车位局部调整、消防车道转弯半径调整等修改涉及总平面图修改(详见附图云线圈示部分),特申请总平面图公示。
这个商业广场就在龙湖春江对面,以后又多了一处逛街的地方了
![]()
![]()
![]()
该项目位于民治街道龙峰一路以南,油松路与油联路交汇处西北角,更新单元用地面积20871.7平方米,拆除范围用地面积19982.9平方米,其中开发建设用地面积13175.1平方米。规划容积为89765平方米,其中商业、办公及旅馆业建筑62835平方米,商务公寓25630平方米(含人才公寓3850平方米),公共配套设施1300平方米(含增配社区级公共配套用房1300平方米)。
未来打造9万平米综合体。
深圳市鸿龙泰投资有限公司现向我局申请变更建设工程规划许可证,由于核增建筑面积、非机动车位局部调整、消防车道转弯半径调整等修改涉及总平面图修改(详见附图云线圈示部分),特申请总平面图公示。
这个商业广场就在龙湖春江对面,以后又多了一处逛街的地方了






要户外照明亮化设计
粤公网安备 44030402000760号
