家在深圳,真实业主生活圈_房网论坛

0

|

1

宏发万悦山幼儿园、托儿所平面图出炉

小暖壶
小暖壶

积分:-

注册时间:-

主楼
2025-06-13 16:56:56
标签: 点击标签查看相关内容

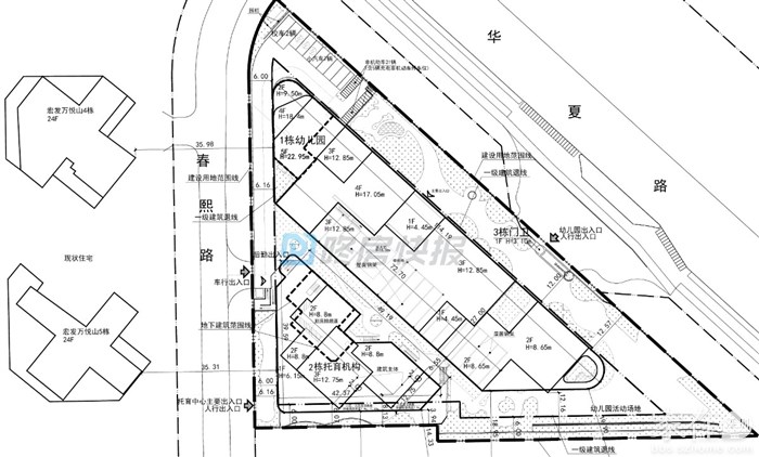
宏发万悦山幼儿园、托儿所平面图出炉

深圳市光明区建筑工务署建设的万丈坡片区(暂定名)幼儿园及托育机构建设工程项目(选址编号:用字第4403112025XS0006572号)

位于光明区光明街道华夏路与春熙路交汇处南侧。

项目占地面积7775平方米总建筑面积8769平方米
建成后为18班/540学位的幼儿园+9班/146学位的托育机构。









本帖于2025-06-13 17:02 被楼主编辑过
分享
0
小暖壶
小暖壶

积分:-

注册时间:-

沙发
2025-06-13 17:11:05
卫星图



  • 插入图片

    支持一次选择9张图片上传(使用Ctrl、Shift选中);

    支持jpg、png、gif,单张图片不超过10M,png不超过1M,gif不超过300K。

    • 继续添加

  • 提到好友

3(16px)

楼主最近发表

相关帖子

    大家都在看

    下载家在深圳APP

    关注家在公众号