420户,金硕臻府总平面图调整公示
一、基本情况
金硕臻府项目位于光明区新湖街道佛子坳路东侧、光辉大道南侧,于2023年5月签订《深圳市国有建设用地使用权出让合同书》[深地合字(2023)7056号];2023年5月取得《建设用地规划许可证》(地字第440311202300209号),同月签订《深圳市土地使用权出让补充协议书》[深地合字(2023)7056号之补充协议一];2023年6月取得变更后的《建设用地规划许可证》(地字第440311202300228号);2023年7月取得《深圳市建设工程规划许可证》(深规划资源建许字GM-2023-0032号)。
二、调整情况
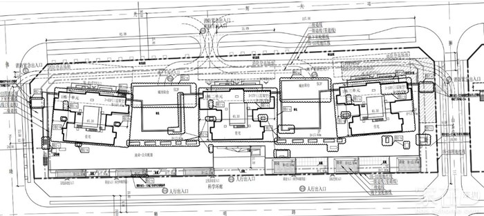
本次项目屋顶总平面调整的主要内容为(详见附件《屋顶总平面图》云线圈注部分):
(一)根据《深圳市建筑设计规则》(2024版)修改调整:项目住宅户型整体重新布局设计,相应调整塔楼建筑轮廓、尺寸标注、层数(二、三单元)、建筑高度(二、三单元)及绿化范围等平面布置和经济技术指标表。
(二)裙房设计优化调整:裙房城市阳台轮廓局部调整;屋顶增设采光天窗、天井,局部轮廓调整;东西侧新增室外台阶。
(三)本次修改不涉及规定建筑面积指标及功能调整,地上、地下核增建筑面积微调;调整后机动车停车位数量不变,建筑覆盖率、绿化覆盖率、自行车停车位数量等仍满足规划要求,修改内容仍符合《深圳市建设用地规划许可证》(深规划资源建许字GM-2023-0032号)和《深圳市土地使用权出让合同书》[深地合字(2023)7056号]及补充协议要求。







,看销控每天备案三四单,今天才签了四个认购。不知道开发商要高价卖还是要赶紧卖完的想法
粤公网安备 44030402000760号
