家在深圳,真实业主生活圈_房网论坛

0

|

1

天境云庭《建设工程规划许可证》及总平面图通告

远看像朵花
远看像朵花

积分:-

注册时间:-

主楼
2024-02-03 18:04:46
标签: 点击标签查看相关内容

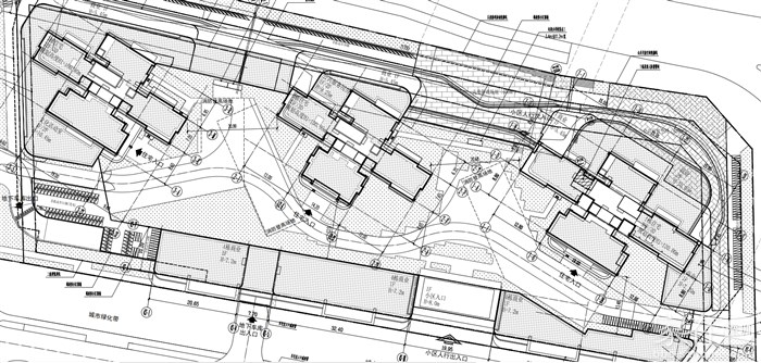
天境云庭《建设工程规划许可证》及总平面图通告

 深圳市振业(集团)股份有限公司建设的天境云庭项目(宗地号:A650-0385)位于光明区新湖街道光辉大道与华夏路交汇处西南侧。经审查,我局同意核发该项目《建设工程规划许可证》。根据《中华人民共和国城乡规划法》第四十条的规定,现将本次核发的《建设工程规划许可证》(建字第4403112024GG0016453号)及总平面图予以公布。





分享
0
远看像朵花
远看像朵花

积分:-

注册时间:-

沙发
2024-02-03 18:06:05
平面图






  • 插入图片

    支持一次选择9张图片上传(使用Ctrl、Shift选中);

    支持jpg、png、gif,单张图片不超过10M,png不超过1M,gif不超过300K。

    • 继续添加

  • 提到好友

3(16px)

楼主最近发表

相关帖子

    大家都在看

    下载家在深圳APP

    关注家在公众号