家在深圳,真实业主生活圈_房网论坛

0

|

2

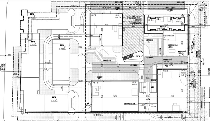
“工改工”马田A630-0070项目

远看像朵花
远看像朵花

积分:-

注册时间:-

主楼
2024-01-29 14:59:48
标签: 点击标签查看相关内容

“工改工”马田A630-0070项目

  深圳市喜德盛实业投资有限公司建设的“光明区马田街道A630-0070宗地建设项目”位于光明区马田街道振发路与金安路交汇处东南侧。经审查,我局同意核发该项目的《建设工程规划许可证》。根据《中华人民共和国城乡规划法》第四十条的规定,现将本次核发的《建设工程规划许可证》及总平面图予以公布。









分享
0
远看像朵花
远看像朵花

积分:-

注册时间:-

沙发
2024-01-29 15:00:14
建设工程许可证



天汇城0001
天汇城0001

积分:-

注册时间:-

板凳
2024-01-29 17:32:40 来自Android手机客户端
去年拆的,围起来很久了,有效果图吗?
  • 插入图片

    支持一次选择9张图片上传(使用Ctrl、Shift选中);

    支持jpg、png、gif,单张图片不超过10M,png不超过1M,gif不超过300K。

    • 继续添加

  • 提到好友

3(16px)

楼主最近发表

相关帖子

    大家都在看

    下载家在深圳APP

    关注家在公众号