家在深圳,真实业主生活圈_房网论坛

0

|

2

满京华其它几期(金硕瑞府、金硕臻府)

扎根光明
扎根光明

积分:-

注册时间:-

主楼
2023-09-06 14:56:47
标签: 点击标签查看相关内容

满京华其它几期(金硕瑞府、金硕臻府)

满京华分5期开发,大家看看哪期位置最好?





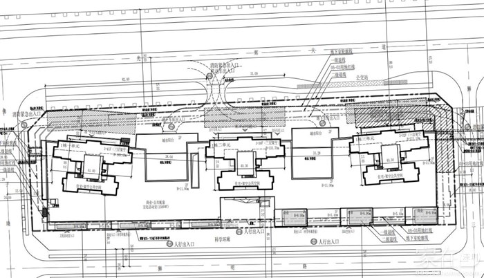
深圳市新湖楼村股份合作公司、深圳市满京华置业投资有限公司共同建设的“金硕臻府”项目(宗地号:A641-0035)位于光明区新湖街道佛子坳路东侧、光辉大道南侧。经审查,深圳市规划和自然资源局光明管理局同意核发该项目《建设工程规划许可证》。根据《中华人民共和国城乡规划法》第四十条的规定,现将本次核发的《建设工程规划许可证》(深规划资源建许字GM-2023-0032号)及总平面图予以公布。

金硕臻府:412户,共3栋,容积率6,停车位661个

北向直面科学公园无敌景观












分享
0
扎根光明
扎根光明

积分:-

注册时间:-

沙发
2023-09-06 15:04:08
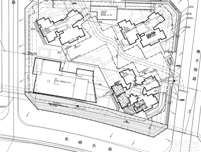
金硕瑞府,690户,3栋住宅1栋幼儿园,停车位708个,容积率6.5

这个在光明大道边上

深圳市新湖楼村股份合作公司、深圳市满京华置业投资有限公司建设的“金硕瑞府”项目(宗地号:A641-0038)位于光明区新湖街道佛子坳路西侧、翠辉路南侧。








荪四秒
荪四秒

积分:-

注册时间:-

板凳
2023-09-19 01:02:44 来自Android手机客户端
有金硕华府的登记资料吗,官方登记绿化率,高度啥的
  • 插入图片

    支持一次选择9张图片上传(使用Ctrl、Shift选中);

    支持jpg、png、gif,单张图片不超过10M,png不超过1M,gif不超过300K。

    • 继续添加

  • 提到好友

3(16px)

楼主最近发表

相关帖子

    大家都在看

    下载家在深圳APP

    关注家在公众号