家在深圳,真实业主生活圈_房网论坛

0

|

19

光明【满京华狮山项目】预计2023年中入市!预推88-98-118-135㎡三至四房,80万体量住宅

潘妮君
潘妮君

积分:-

注册时间:-

主楼
2023-01-18 15:33:52
标签: 点击标签查看相关内容

光明【满京华狮山项目】预计2023年中入市!预推88-98-118-135㎡三至四房,80万体量住宅

【搬运帖】
  光明「满京华旧改」狮山利益统筹项目,目前7个地块已动工,预计明年中就可以入市,建面约88-98-118-135㎡2+1和3+1房。


  沿光辉大道从西设计,范围涵盖10块用地,总用地109398㎡,总建筑面积约32.38万㎡,其中项目用地7块,返还用地1块,公共绿化用地2块。


  满京华 项目简介  

  满京华项目选取了位于光明中心区规划红线范围内的楼村狮山工业区作为试点,周边紧邻科技创新文化集群,如科学岛、科技馆新馆、西方美术馆等,是光明科学环廊核心地带之一。



  满京华旧改 位置图



  满京华 项目平面图



分享
0
潘妮君
潘妮君

积分:-

注册时间:-

沙发
2023-01-18 15:36:44
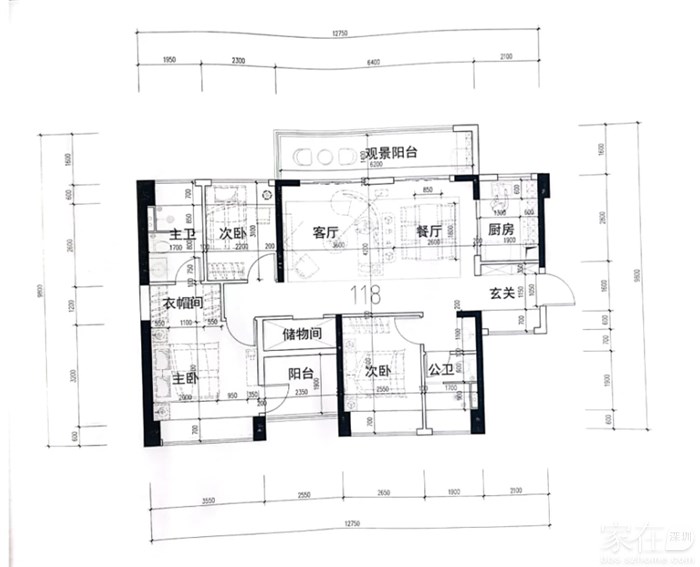
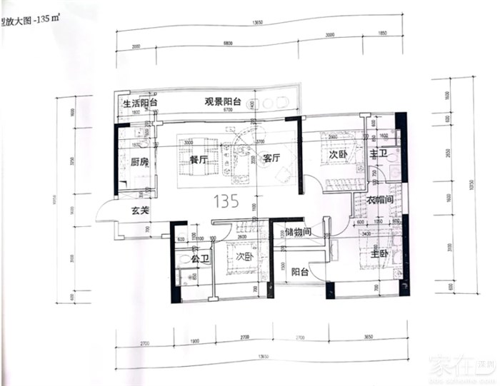
  满京华 项目户型图

118平:


98平:


98平(横厅)


88平:


135平:

潘妮君
潘妮君

积分:-

注册时间:-

板凳
2023-01-18 15:39:11
  满京华05-09地块

  05-09地块效果图:


1#3梯6户,为98平4套118平2套
2#2梯6户,88平2套98平横竖厅各两套。






88991010
88991010

积分:-

注册时间:-

地板
2023-01-18 15:40:56 来自Android手机客户端
靠近科学公园视野好的,都是大户型。不知道价格几何?明年科学公园落成,这一片区环境还需要3-5年才能根本改善。
潘妮君
潘妮君

积分:-

注册时间:-

4楼
2023-01-18 15:42:11
  满京华05-10地块
  05-10地块效果图



1#3梯6户,户型98平竖厅4套118平2套;
2#分为两个单元,均为为3梯4户,户型为89平镜面户型各1套,118平、135平各1套;




3#为3梯6户,其中88平3套,98平竖厅1套,98平横厅两套;
4#为3梯6户,户型为88平1套,98平横厅1套、竖厅3套,118平1套。






潘妮君
潘妮君

积分:-

注册时间:-

5楼
2023-01-18 15:44:23
  满京华05-13地块
  05-13地块效果图


1#分为两个单元,1单元为2梯4户,98平横厅1套、竖厅2套,118平1套;2单元为3梯5户,88平3套,98平1套,118平1套。
2#为3梯6户,户型为88的3套,98平的竖厅1套、横厅2套。








88991010
88991010

积分:-

注册时间:-

6楼
2023-01-18 15:45:49 来自Android手机客户端
卓越楼村第一工业区更新,估计23年也要开始启动了。希望环科学公园片区早日建成,实景展现光明中心区该有的样子,科学、城市、产业、人才齐头并进。
潘妮君
潘妮君

积分:-

注册时间:-

7楼
2023-01-18 15:45:53
  满京华06-04地块


1#为2梯6户,户型为88平的3套,98平的竖厅1套,118、135平各1套;
2-5#为3梯6户,户型为98平竖厅4套,118、135平各1套。





潘妮君
潘妮君

积分:-

注册时间:-

8楼
2023-01-18 15:47:32
不清楚价格,体量很大可能会分期卖吧。主要满京华开发商貌似大家听得少,口碑未知
引用3楼88991010的发言:
靠近科学公园视野好的,都是大户型。不知道价格几何?明年科学公园落成,这一片区环境还需要3-5年才能根本改善。
永不磨灭的番号
永不磨灭的番号

积分:-

注册时间:-

9楼
2023-01-18 16:46:50 来自Android手机客户端
估计5.5左右
引用88991010的发言:
靠近科学公园视野好的,都是大户型。不知道价格几何?明年科学公园落成,这一片区环境还需要3-5年才能根本改善。
舍瓦里希德
舍瓦里希德

积分:-

注册时间:-

10楼
2023-01-18 17:07:43
超大体量 够卖10年的
何智群
何智群

积分:-

注册时间:-

11楼
2023-01-18 18:10:14 来自iPhone客户端
98 三加一,绿城会说本来我卖不出去了,现在有同行衬托有希望了
hsj123
hsj123

积分:-

注册时间:-

12楼
2023-01-19 10:17:20 来自Android手机客户端
户型不太好,3梯6户甚至2梯6户到时候等电梯会让人崩溃的。
千木呈
千木呈

积分:-

注册时间:-

13楼
2023-01-19 10:26:21 来自Android手机客户端
有商业吗?
大亚湾大道
大亚湾大道

积分:-

注册时间:-

14楼
2023-01-19 11:35:25 来自Android手机客户端
深业四万多还是可以的,安联超过五万就歇C
dhdz187
dhdz187

积分:-

注册时间:-

15楼
2023-01-19 14:01:08 来自Android手机客户端
估计容积率会很高
Mr简单生活
Mr简单生活

积分:-

注册时间:-

16楼
2023-01-28 19:36:01 来自iPhone客户端
5.5?打扰了
引用9楼永不磨灭的番号的发言:
估计5.5左右
引用88991010的发言:
靠近科学公园视野好的,都是大户型。不知道价格几何?明年科学公园落成,这一片区环境还需要3-5年才能根本改善。
Frank03
Frank03

积分:-

注册时间:-

17楼
2023-01-29 17:54:29 来自Android手机客户端
88平三房一卫,和光明常规的88-89三房两卫比,除非是价格很低,不然为什么要买它
引用Mr简单生活的发言:
5.5?打扰了
引用9楼永不磨灭的番号的发言:
估计5.5左右
引用88991010的发言:
靠近科学公园视野好的,都是大户型。不知道价格几何?明年科学公园落成,这一片区环境还需要3-5年才能根本改善。
zelon
zelon

积分:-

注册时间:-

18楼
2023-09-05 19:57:42
怎么感觉全都是开放式小区
resnet50
resnet50

积分:-

注册时间:-

19楼
2023-09-06 09:10:07 来自Android手机客户端
地铁很远吧
  • 插入图片

    支持一次选择9张图片上传(使用Ctrl、Shift选中);

    支持jpg、png、gif,单张图片不超过10M,png不超过1M,gif不超过300K。

    • 继续添加

  • 提到好友

3(16px)

楼主最近发表

相关帖子

    大家都在看

    下载家在深圳APP

    关注家在公众号