家在深圳,真实业主生活圈_房网论坛

0

|

32

首发~~~宏发万悦山二期户型图来了

上车成功
上车成功

积分:-

注册时间:-

主楼
2022-03-14 11:30:51
标签: 点击标签查看相关内容

首发~~~宏发万悦山二期户型图来了

疑似宏发万悦山二期户型图出炉,大家看看设计的怎么样?

先来79平米三房一卫
优点:总价低,实用
缺点:靠路边,噪音大,西晒




分享
0
上车成功
上车成功

积分:-

注册时间:-

沙发
2022-03-14 11:34:09
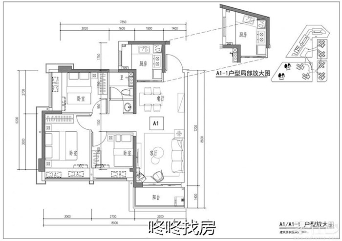
再来89平米三房两厅两卫

优点:东南向
缺点:两个次卧太小了,有点像2+1房



上车成功
上车成功

积分:-

注册时间:-

板凳
2022-03-14 11:37:55
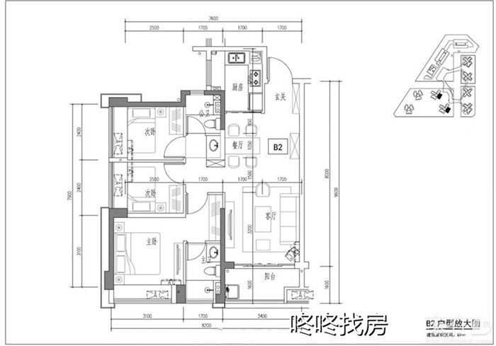
B1户89平米三房两厅两卫
优点:朝南看花园、安静,格局正常
缺点:普通户型,无功无过



上车成功
上车成功

积分:-

注册时间:-

地板
2022-03-14 11:40:13
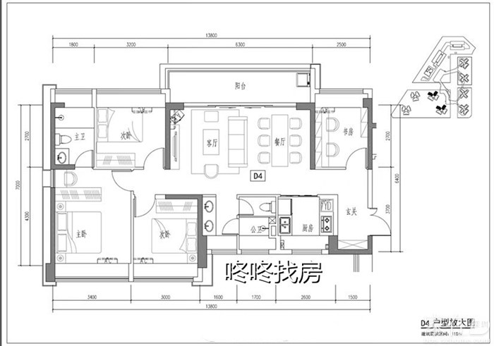
118平米四房
优点:横厅设计,格局正常,实用
缺点:厨房偏 小




大寒过后
大寒过后

积分:-

注册时间:-

4楼
2022-03-14 11:42:38
除了118平米四房还不错,其它都普普通通

不过比星河天地户型强不知多少了
Arthurdonger
Arthurdonger

积分:-

注册时间:-

5楼
2022-03-14 12:27:01 来自iPhone客户端
四房阳台朝北
想去光明小镇
想去光明小镇

积分:-

注册时间:-

6楼
2022-03-14 14:34:57

huaze555
huaze555

积分:-

注册时间:-

7楼
2022-03-14 15:03:16 来自iPhone客户端
这个户型的两个次卧,难道不小吗?
引用2楼楼主的发言:
B1户89平米三房两厅两卫
优点:朝南看花园、安静,格局正常
缺点:普通户型,无功无过

湾区老周
湾区老周

积分:-

注册时间:-

8楼
2022-03-14 15:31:09 来自Android手机客户端
89平的房间都太小了
冰棍男孩2121286_微信
冰棍男孩2121286_微信

积分:-

注册时间:-

9楼
2022-03-15 07:54:57 来自iPhone客户端
和星河3 4比呢
引用4楼大寒过后的发言:
除了118平米四房还不错,其它都普普通通

不过比星河天地户型强不知多少了
上车成功
上车成功

积分:-

注册时间:-

10楼
2022-03-15 09:37:19
现在没几个89平米的盘次卧大的,都是小。

只能说在这次户型里相比而言
引用7楼huaze555的发言:
这个户型的两个次卧,难道不小吗?
引用2楼楼主的发言:
B1户89平米三房两厅两卫
优点:朝南看花园、安静,格局正常
缺点:普通户型,无功无过

余振原
余振原

积分:-

注册时间:-

11楼
2022-03-15 11:40:41 来自Android手机客户端
只爱横厅的飘过。问一句,飘窗是不是都能砸掉?
正大城YYDS
正大城YYDS

积分:-

注册时间:-

12楼
2022-03-15 11:59:56 来自Android手机客户端
用户被禁言
慕芯爱儿
慕芯爱儿

积分:-

注册时间:-

13楼
2022-03-15 22:05:12 来自iPhone客户端
这个二期离地铁近,太吵了啊
briget
briget

积分:-

注册时间:-

14楼
2022-03-16 10:41:53 来自iPhone客户端
四房的阳台全部没有一丁点阳光,难以理解
Naska
Naska

积分:-

注册时间:-

15楼
2022-03-16 11:53:54
四房的是最差的朝向
引用15楼briget的发言:
四房的阳台全部没有一丁点阳光,难以理解
凡人不醉
凡人不醉

积分:-

注册时间:-

16楼
2022-03-16 18:54:23 来自iPhone客户端
户型真差
NOAHHU
NOAHHU

积分:-

注册时间:-

17楼
2022-03-17 19:50:52
尴尬了。。。
引用14楼briget的发言:
四房的阳台全部没有一丁点阳光,难以理解
夕阳看雪
夕阳看雪

积分:-

注册时间:-

18楼
2022-03-18 16:57:52 来自iPhone客户端
四房是最差的,朝向方位不好
引用4楼大寒过后的发言:
除了118平米四房还不错,其它都普普通通

不过比星河天地户型强不知多少了
湾区老周
湾区老周

积分:-

注册时间:-

19楼
2022-03-18 17:37:30 来自Android手机客户端
二期比一期差远了
Nathan_tour
Nathan_tour

积分:-

注册时间:-

20楼
2022-03-18 21:28:05 来自Android手机客户端
住宅垃圾
  • 插入图片

    支持一次选择9张图片上传(使用Ctrl、Shift选中);

    支持jpg、png、gif,单张图片不超过10M,png不超过1M,gif不超过300K。

    • 继续添加

  • 提到好友

3(16px)

楼主最近发表

相关帖子

    大家都在看

    下载家在深圳APP

    关注家在公众号