家在深圳,真实业主生活圈_房网论坛

0

|

1

关于龙华区第二外国语学校总平面图修改公示

故园风雨
故园风雨

积分:-

注册时间:-

主楼
2024-07-08 12:07:11
标签: 点击标签查看相关内容

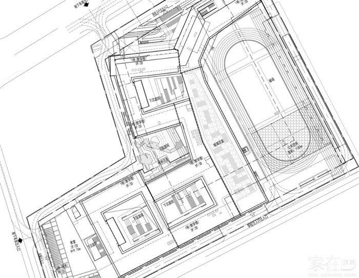
关于龙华区第二外国语学校总平面图修改公示

 龙华区第二外国语学校(宗地号:A841-0546)位于龙华区大浪街道,已取得《建设工程规划许可证》(深规土建许字LA-2019-0015号)。现该项目申请总平面图修改,具体修改内容详见附图。






分享
0
我爱我家GT
我爱我家GT

积分:-

注册时间:-

沙发
2024-07-08 12:08:12 来自Android手机客户端
  • 插入图片

    支持一次选择9张图片上传(使用Ctrl、Shift选中);

    支持jpg、png、gif,单张图片不超过10M,png不超过1M,gif不超过300K。

    • 继续添加

  • 提到好友

3(16px)

楼主最近发表

相关帖子

    大家都在看

    下载家在深圳APP

    关注家在公众号