家在深圳,真实业主生活圈_房网论坛

0

|

5

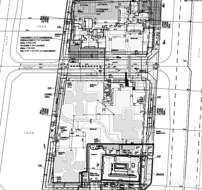
北站超核万象中心(一期)总平面图

二龙
二龙

积分:-

注册时间:-

主楼
2024-05-07 10:12:15
标签: 点击标签查看相关内容

北站超核万象中心(一期)总平面图

 深圳市润北房地产有限公司建设的“北站超核万象中心(一期)”项目位于龙华区民治街道,宗地号A806-0401 。经审查,同意核发项目《建设工程规划许可证》。

  根据《中华人民共和国城乡规划法》第四十条规定,现将本次核发的《建设工程规划许可证》及总平面图予以公布。




分享
0
二龙
二龙

积分:-

注册时间:-

沙发
2024-05-07 10:13:49













没有最好
没有最好

积分:-

注册时间:-

板凳
2024-05-07 10:29:38
万象城有新消息吗
qingfengme
qingfengme

积分:-

注册时间:-

地板
2024-05-09 00:57:25
倒闭了吧
引用2楼没有最好的发言:
万象城有新消息吗
凡人煮酒
凡人煮酒

积分:-

注册时间:-

4楼
2024-05-11 17:12:28

万象建好几层啦

引用2楼没有最好的发言:
万象城有新消息吗
KitZheng
KitZheng

积分:-

注册时间:-

5楼
2025-11-13 10:59:06 来自Android手机客户端
好像万象中心隔壁腾靠腾龙路地块也开始施工了
  • 插入图片

    支持一次选择9张图片上传(使用Ctrl、Shift选中);

    支持jpg、png、gif,单张图片不超过10M,png不超过1M,gif不超过300K。

    • 继续添加

  • 提到好友

3(16px)

楼主最近发表

相关帖子

    大家都在看

    下载家在深圳APP

    关注家在公众号