家在深圳,真实业主生活圈_房网论坛

0

|

1

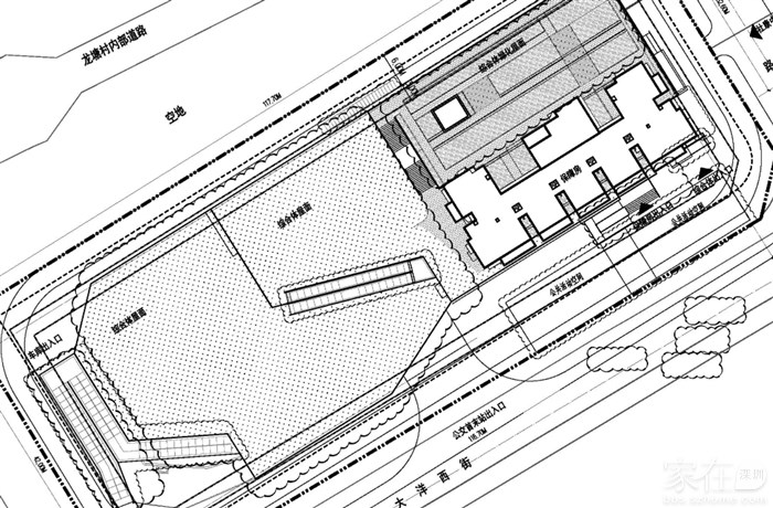
龙欢欣苑总平面图修改的公示

橙色披风
橙色披风

积分:-

注册时间:-

主楼
2024-04-29 14:34:25
标签: 点击标签查看相关内容

龙欢欣苑总平面图修改的公示

龙欢欣苑(龙塘停车场旧改)总平面图修改的公示
位于龙华区民治街道,中环路与龙塘南五巷交叉口南,为区级公租房,配租204套,户型预计单间、两房一厅为主。

204户保障房
368个停车位






分享
0
橙色披风
橙色披风

积分:-

注册时间:-

沙发
2024-04-29 14:35:45
位置很好,开市客对面



  • 插入图片

    支持一次选择9张图片上传(使用Ctrl、Shift选中);

    支持jpg、png、gif,单张图片不超过10M,png不超过1M,gif不超过300K。

    • 继续添加

  • 提到好友

3(16px)

楼主最近发表

相关帖子

    大家都在看

    下载家在深圳APP

    关注家在公众号