家在深圳,真实业主生活圈_房网论坛

0

|

5

882户,檀悦府平面图

橙色披风
橙色披风

积分:-

注册时间:-

主楼
2024-03-07 15:35:29
标签: 点击标签查看相关内容

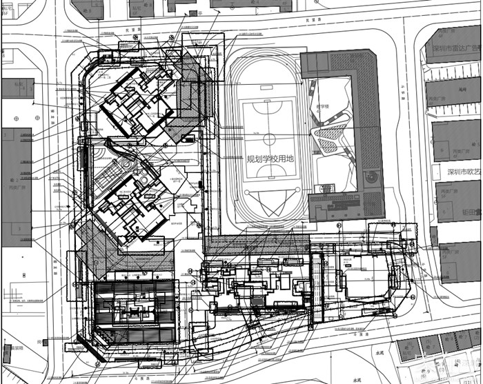
882户,檀悦府平面图

檀悦府位于龙华区龙华街道,宗地号:A819-0726。

  经我局审查,同意核发该宗地《建设工程规划许可证》【建字第4403092024GG0036464(改 1)号】。根据《深圳市建设工程规划许可(房建类)报建文件编制技术规定》(深规土〔2018〕949号),现将本次核发的《建设工程规划许可证》及其总平面图予以公布。

由4栋住宅、1栋写字楼、一栋幼儿园()

用地面积:15979.6平米

建筑面积:190283.29平米

容积率:8.8

停车位:1290个

商品房:610户

保障房:104户

回迁房:168户


分享
0
橙色披风
橙色披风

积分:-

注册时间:-

沙发
2024-03-07 15:37:18
建设工程规划许可证



橙色披风
橙色披风

积分:-

注册时间:-

板凳
2024-03-07 15:45:15
duxinglang
duxinglang

积分:-

注册时间:-

地板
2024-05-17 15:08:58
这最新的平面图显示,不是3栋住宅加1栋写字楼吗?哪有4栋住宅了?
KitZheng
KitZheng

积分:-

注册时间:-

4楼
2024-05-17 15:28:54 来自Android手机客户端
为啥二期开始建了一期反而没开始啊
菲尼克斯太阳
菲尼克斯太阳

积分:-

注册时间:-

5楼
2024-05-20 14:03:37
这地段有点糟糕啊
  • 插入图片

    支持一次选择9张图片上传(使用Ctrl、Shift选中);

    支持jpg、png、gif,单张图片不超过10M,png不超过1M,gif不超过300K。

    • 继续添加

  • 提到好友

3(16px)

楼主最近发表

相关帖子

    大家都在看

    下载家在深圳APP

    关注家在公众号