标签:
点击标签查看相关内容
华昌路旧改的规划来了
龙华区大浪街道华昌路城市更新单元规划项目已转入《2023年深圳市龙华区城市更新单元计划第四批计划》,现该更新单元规划(草案)已经通过2023年龙华区城市更新工作领导小组第六次会议审议。根据《中华人民共和国城乡规划法》《深圳经济特区城市更新条例》《深圳市城市更新办法实施细则》《深圳市人民政府关于施行城市更新工作改革的决定》《深圳市拆除重建类城市更新单元规划审批规定》以及《深圳市龙华区城市更新实施办法》等相关规定,现予以公开展示,内容如下:
一、项目概况
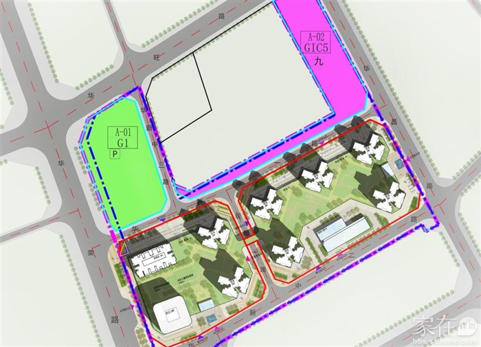
项目位于华旺路与华昌路交汇处,更新单元用地面积81973.9平方米,拆除用地面积79551.1平方米,其中开发建设用地43977.7平方米(其中77.98平方米国有未出让的零星用地按照城市更新办法及其实施细则一并出让给项目实施主体)。规划容积308640平方米,其中住宅240150平方米(含政府配租的保障性住房38460平方米),商业、办公及旅馆业建筑合计49760平方米,公共配套设施(含地下)18730平方米(含12班幼儿园5700平方米、占地3600平方米,社区健康服务中心1500平方米,社区老年人日间照料中心1500平方米,社区管理用房300平方米,社区警务室200平方米,文化活动室1000平方米,公交首末站3600平方米,托育机构600平方米,社区级公共配套用房2580平方米,社区党群服务中心650平方米,公共充电站1100平方米)。另配建社区体育活动场地2600平方米(附设于裙房屋顶),社区儿童游戏场地1200平方米(附设于裙房屋顶)。物业服务用房按照《深圳经济特区物业管理条例》予以核定,母婴室按照《深圳市城市规划标准与准则》予以核定。
![]()
![]()
一、项目概况
项目位于华旺路与华昌路交汇处,更新单元用地面积81973.9平方米,拆除用地面积79551.1平方米,其中开发建设用地43977.7平方米(其中77.98平方米国有未出让的零星用地按照城市更新办法及其实施细则一并出让给项目实施主体)。规划容积308640平方米,其中住宅240150平方米(含政府配租的保障性住房38460平方米),商业、办公及旅馆业建筑合计49760平方米,公共配套设施(含地下)18730平方米(含12班幼儿园5700平方米、占地3600平方米,社区健康服务中心1500平方米,社区老年人日间照料中心1500平方米,社区管理用房300平方米,社区警务室200平方米,文化活动室1000平方米,公交首末站3600平方米,托育机构600平方米,社区级公共配套用房2580平方米,社区党群服务中心650平方米,公共充电站1100平方米)。另配建社区体育活动场地2600平方米(附设于裙房屋顶),社区儿童游戏场地1200平方米(附设于裙房屋顶)。物业服务用房按照《深圳经济特区物业管理条例》予以核定,母婴室按照《深圳市城市规划标准与准则》予以核定。





粤公网安备 44030402000760号
