家在深圳,真实业主生活圈_房网论坛

0

|

1

迎玺花园一期总平面图修改公示

橙色披风
橙色披风

积分:-

注册时间:-

主楼
2023-09-06 15:45:03
标签: 点击标签查看相关内容

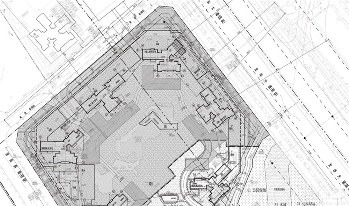
迎玺花园一期总平面图修改公示

 深圳市黄金台项目开发有限公司的“迎玺花园”一期项目(宗地号:A806-0396)位于民治街道办事处,已取得《建设工程规划许可证》(深规划资源建许字LA-2023-0010号)。现该司申请总平面图修改公示,主要修改内容为对总平面图局部修改(具体内容详见附图云线圈示部分)。






分享
0
什么进度
什么进度

积分:-

注册时间:-

沙发
2023-09-06 15:49:02
容积率4,比想象中好点
  • 插入图片

    支持一次选择9张图片上传(使用Ctrl、Shift选中);

    支持jpg、png、gif,单张图片不超过10M,png不超过1M,gif不超过300K。

    • 继续添加

  • 提到好友

3(16px)

楼主最近发表

相关帖子

    大家都在看

    下载家在深圳APP

    关注家在公众号