家在深圳,真实业主生活圈_房网论坛

0

|

6

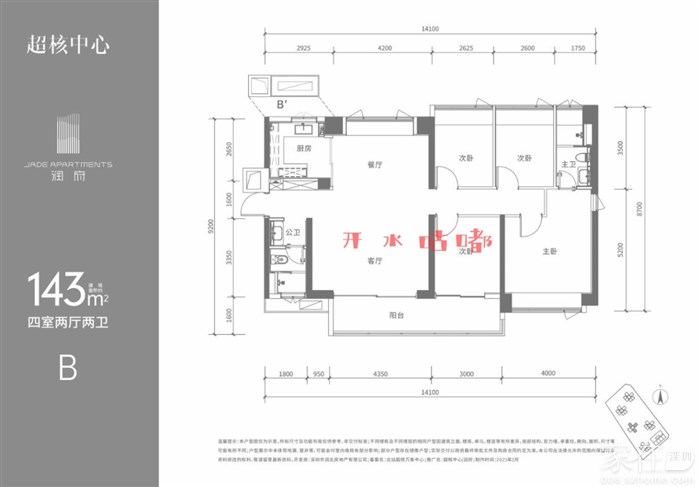
华润超核中心带尺寸户型图来了

开水咕嘟
开水咕嘟

积分:-

注册时间:-

主楼
2023-02-20 11:41:48
标签: 点击标签查看相关内容

华润超核中心带尺寸户型图来了

华润SS发了带尺寸的户型图,发出来大家一起分享。












分享
0
榕叶琴
榕叶琴

积分:-

注册时间:-

沙发
2023-02-20 11:45:27
据说一期没有143平米的,143平米的在二期
rayathome
rayathome

积分:-

注册时间:-

板凳
2023-02-20 14:29:37
不能扩面积后,使用率都低了好多
99平米的,客厅才3.5米宽
yunliuliu
yunliuliu

积分:-

注册时间:-

地板
2023-02-21 09:37:12 来自iPhone客户端
现在的新房看起来单价低了,但是没有送面积,总价并不会低哦,以前89的房子都能做四房两厅两卫了
醋四级
醋四级

积分:-

注册时间:-

4楼
2023-02-21 10:55:19 来自Android手机客户端
除去墙体3.2最多了
引用rayathome的发言:
不能扩面积后,使用率都低了好多
99平米的,客厅才3.5米宽
wendy091120
wendy091120

积分:-

注册时间:-

5楼
2023-02-21 20:04:33 来自iPhone客户端
坪山7、80方,北站99方
grantl
grantl

积分:-

注册时间:-

6楼
2023-02-24 08:02:53 来自Android手机客户端
这99的尺寸还不如周边89的
  • 插入图片

    支持一次选择9张图片上传(使用Ctrl、Shift选中);

    支持jpg、png、gif,单张图片不超过10M,png不超过1M,gif不超过300K。

    • 继续添加

  • 提到好友

3(16px)

楼主最近发表

相关帖子

    大家都在看

    下载家在深圳APP

    关注家在公众号