家在深圳,真实业主生活圈_房网论坛

0

|

2

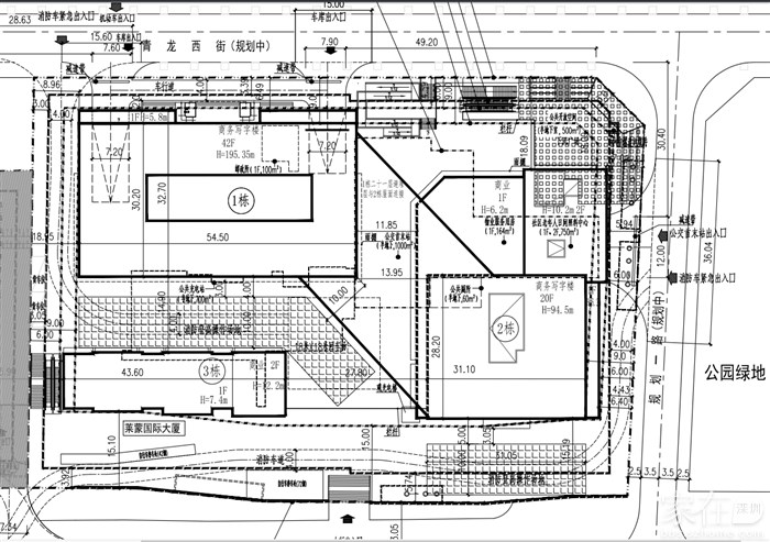
关于莱蒙国际大厦总平面图通告

没有废话
没有废话

积分:-

注册时间:-

主楼
2022-03-24 17:18:38
标签: 点击标签查看相关内容

关于莱蒙国际大厦总平面图通告

深圳市中益名浩房地产开发有限公司开发的莱蒙国际大厦位于龙华区民治街道,宗地号:A816-0067。

  经我局审查,同意核发该宗地《建设工程规划许可证》[深规划资源建许字AG-2020-0003(改1)号]。根据《深圳市建设工程规划许可(房建类)报建文件编制技术规定》(深规土〔2018〕949号),现将本次核发的《建设工程规划许可证》及其总平面图予以公布。









分享
0
四季青菜
四季青菜

积分:-

注册时间:-

沙发
2022-03-25 09:28:53
3栋都是写字楼吗,没有商务公寓之类的吗?

没有最好
没有最好

积分:-

注册时间:-

板凳
2022-03-25 09:29:09
只有写字楼和商业
引用1楼四季青菜的发言:
3栋都是写字楼吗,没有商务公寓之类的吗?

  • 插入图片

    支持一次选择9张图片上传(使用Ctrl、Shift选中);

    支持jpg、png、gif,单张图片不超过10M,png不超过1M,gif不超过300K。

    • 继续添加

  • 提到好友

3(16px)

楼主最近发表

相关帖子

    大家都在看

    下载家在深圳APP

    关注家在公众号