家在深圳,真实业主生活圈_房网论坛

0

|

1

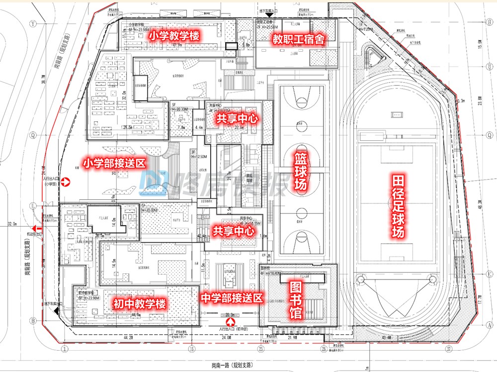
提供1680个学位,沙井壆岗九年制学校平面图出炉

百香果味
百香果味

积分:-

注册时间:-

主楼
2025-11-24 22:17:04
标签: 点击标签查看相关内容

提供1680个学位,沙井壆岗九年制学校平面图出炉

今天看到宝安管理局公布沙井街道壆岗岗厦片区城市更新九年一贯制学校项目《建设工程规划许可证》及总平面图

位于宝安区沙井街道壆岗沙园路与沙井岗厦路交汇处(拾悦城北侧)。
项目定位为36班九年一贯制学校,提供1680个学位(小学24班1080个学位,初中12班600个学位)。
用地面积:约1.63万平方米
建筑面积:约4.2万平方米
容积率:1.88,绿化率20%
配套设施:设有200米环形跑道、篮球场(兼排球场、羽毛球场)
停车位:122个
预计将在2026-2027学年建成招生
将有效缓解沙井片区学位紧张问题。







效果图










分享
0
百香果味
百香果味

积分:-

注册时间:-

沙发
2025-11-24 22:23:47
更多信息欢迎来微信群交流



  • 插入图片

    支持一次选择9张图片上传(使用Ctrl、Shift选中);

    支持jpg、png、gif,单张图片不超过10M,png不超过1M,gif不超过300K。

    • 继续添加

  • 提到好友

3(16px)

楼主最近发表

相关帖子

    大家都在看

    下载家在深圳APP

    关注家在公众号