标签:
点击标签查看相关内容
折后4.46万起,福永怀德城4期德望府优缺点
宝安福永怀德城四期德望府已于10月25日开盘。
项目位于深圳市宝安区福永怀德南路与翠岗西路交汇处。
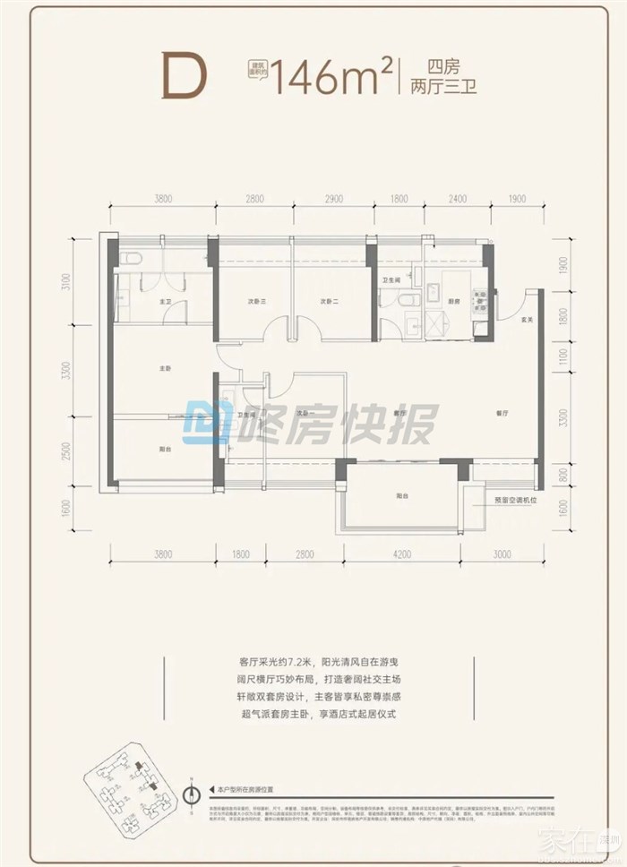
本次首推4栋2单元跟5栋1单元,面积有99㎡的3房2卫,113㎡的4房2卫,145-148-199㎡的4房2厅3卫户型。
共215套房源,备案均价5.69万/㎡,备案单价4.94-7.23万/㎡,总价488-1420万/套,合同约定在2027年3月份带精装交房。
这次开盘也给出了9.03折的折扣优惠,折后均价5.13万/㎡,折后单价4.46-6.53万/㎡,3房总价441万起,4房2卫总价507万起,4房3卫总价767万起,另外还有5套185-325平的顶复,折后总价1172-2297万/套。
99㎡的3房2厅2卫,折后总价441-458万/套,单价4.46-4.64万/㎡。
113㎡的4房2厅2卫,折后总价507-613万/套,单价4.47-5.41万/㎡。
145㎡的4房2厅3卫,折后总价767-816万/套,单价5.26-5.6万/㎡。
148㎡的4房2厅3卫,折后总价777-828万/套,单价5.25-5.59万/㎡。
199㎡的4房2厅3卫,折后总价1112-1282万/套,单价5.57-6.53万/㎡。
![]()
![]()
开发商:深圳市怀德房地产开发有限公司
物业公司:深圳市怀德城物业管理有限公司
物业管理费:5元/㎡
总占地面积:2.64万/㎡
总建筑面积:24.16万/㎡
容积率:5.46
绿化率:40%
产权年限:2023年12月5日-2093年12月4日(70年)
总户数:1175户
总栋数及楼高:5栋9座,29-31层
梯户比:楼王4栋2梯3户,2栋3梯6户其它栋数3梯5户
车位数:1512个
车位占比:1:1.28
交楼时间:2027年3月30日
交楼标准: 精装
怀德城前身为福永怀德旧村更新项目,分四期开发:一期怀德公元,二期怀德峰景,三期怀德国际,四期德懿府、德望府、18万平米万象汇商业。后续还有多期开发,预计总建面超1000万㎡。
来说说优缺点
优点:
1、门口地铁12号线怀德站D出口
2、门口配套深圳万象汇购物中心、700米益田假日天地
3、小区斜对面宝安图书馆福永分馆、福永文化艺术馆、翠岗公园
4、楼下深大附中宝安学校,400米福永小学、中学
缺点:
1、小区旧改体量较大,周边城中村未来旧改周期较长,3-8年处于施工状态
2、周边工业区较多,城市面貌需进一步更新
3、靠近北侧紧挨怀德南路(双向六车道),东侧规划有公交首末站有噪音影响
欢迎大家补充
![]()
![]()
项目位于深圳市宝安区福永怀德南路与翠岗西路交汇处。
本次首推4栋2单元跟5栋1单元,面积有99㎡的3房2卫,113㎡的4房2卫,145-148-199㎡的4房2厅3卫户型。
共215套房源,备案均价5.69万/㎡,备案单价4.94-7.23万/㎡,总价488-1420万/套,合同约定在2027年3月份带精装交房。
这次开盘也给出了9.03折的折扣优惠,折后均价5.13万/㎡,折后单价4.46-6.53万/㎡,3房总价441万起,4房2卫总价507万起,4房3卫总价767万起,另外还有5套185-325平的顶复,折后总价1172-2297万/套。
99㎡的3房2厅2卫,折后总价441-458万/套,单价4.46-4.64万/㎡。
113㎡的4房2厅2卫,折后总价507-613万/套,单价4.47-5.41万/㎡。
145㎡的4房2厅3卫,折后总价767-816万/套,单价5.26-5.6万/㎡。
148㎡的4房2厅3卫,折后总价777-828万/套,单价5.25-5.59万/㎡。
199㎡的4房2厅3卫,折后总价1112-1282万/套,单价5.57-6.53万/㎡。
开发商:深圳市怀德房地产开发有限公司
物业公司:深圳市怀德城物业管理有限公司
物业管理费:5元/㎡
总占地面积:2.64万/㎡
总建筑面积:24.16万/㎡
容积率:5.46
绿化率:40%
产权年限:2023年12月5日-2093年12月4日(70年)
总户数:1175户
总栋数及楼高:5栋9座,29-31层
梯户比:楼王4栋2梯3户,2栋3梯6户其它栋数3梯5户
车位数:1512个
车位占比:1:1.28
交楼时间:2027年3月30日
交楼标准: 精装
怀德城前身为福永怀德旧村更新项目,分四期开发:一期怀德公元,二期怀德峰景,三期怀德国际,四期德懿府、德望府、18万平米万象汇商业。后续还有多期开发,预计总建面超1000万㎡。
来说说优缺点
优点:
1、门口地铁12号线怀德站D出口
2、门口配套深圳万象汇购物中心、700米益田假日天地
3、小区斜对面宝安图书馆福永分馆、福永文化艺术馆、翠岗公园
4、楼下深大附中宝安学校,400米福永小学、中学
缺点:
1、小区旧改体量较大,周边城中村未来旧改周期较长,3-8年处于施工状态
2、周边工业区较多,城市面貌需进一步更新
3、靠近北侧紧挨怀德南路(双向六车道),东侧规划有公交首末站有噪音影响
欢迎大家补充




粤公网安备 44030402000760号
