家在深圳,真实业主生活圈_房网论坛

0

|

3

宝安又有新学校了,燕罗新增两所小学,来看看具体在哪

榕叶琴
榕叶琴

积分:-

注册时间:-

主楼
2025-10-09 16:01:28
标签: 点击标签查看相关内容

宝安又有新学校了,燕罗新增两所小学,来看看具体在哪

宝安燕罗街道又新添两所小学,来看看具体位置在哪?
一个位于红燕路与朝阳路交汇处,学校名子未定
总用地面积8877㎡,建面约2.1万平,拟规划建设一所24班的小学。

看卫星地图是把田心公园一分为二,一部分地块做小学了,右手边还有宝安区星光学校(特殊教育学校)











分享
0
榕叶琴
榕叶琴

积分:-

注册时间:-

沙发
2025-10-09 16:05:59
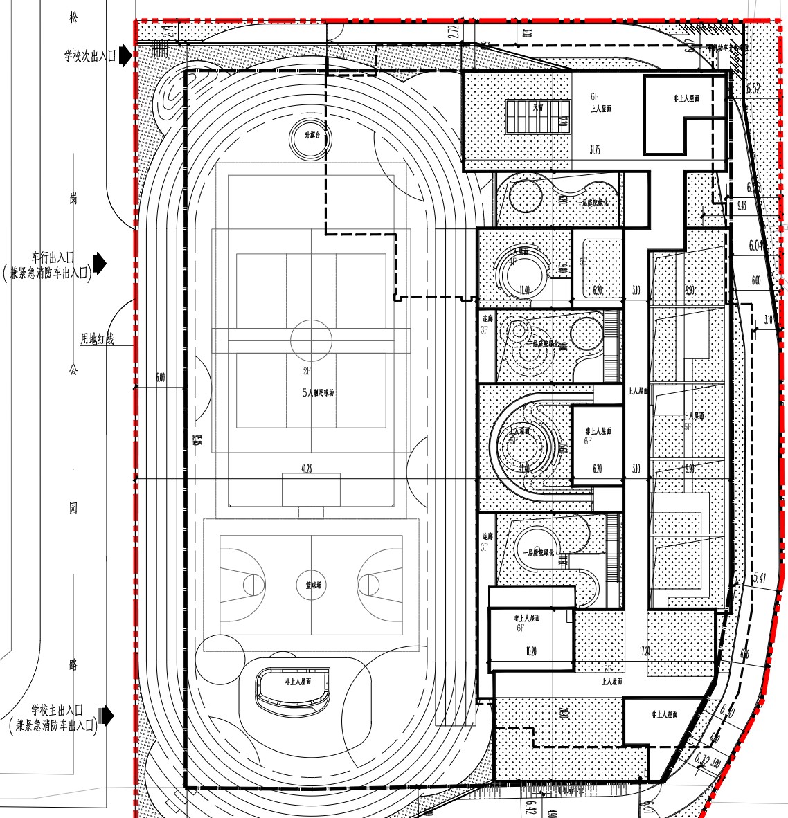
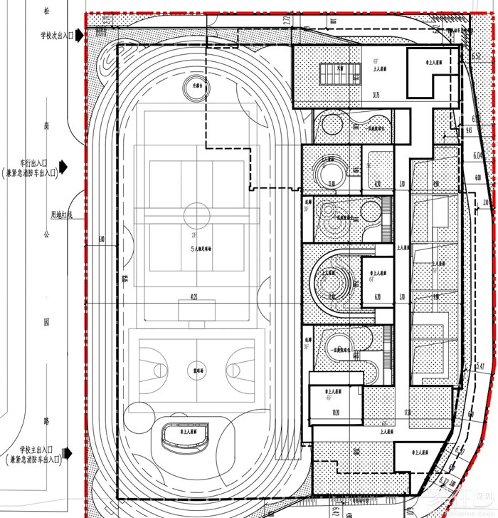
还有一个就是洪桥头小学
“燕罗街道洪桥头小学新建工程(暂定名)”项目位于深圳市宝安区燕罗街道松岗公园天桥附近。
总建面约1.7万平,学校规模18 班。












榕叶琴
榕叶琴

积分:-

注册时间:-

板凳
2025-10-09 16:07:56
以前燕罗街道学校挺少,这次一下新添两所小学,大家希望哪个教育集团接手呢?
都来群里聊聊吧



spring2017
spring2017

积分:-

注册时间:-

地板
2025-10-25 22:58:57 来自Android手机客户端
18班/24个班,一个年级才3-4个班,这样的学校建了干啥?浪费资源
  • 插入图片

    支持一次选择9张图片上传(使用Ctrl、Shift选中);

    支持jpg、png、gif,单张图片不超过10M,png不超过1M,gif不超过300K。

    • 继续添加

  • 提到好友

3(16px)

楼主最近发表

相关帖子

    大家都在看

    下载家在深圳APP

    关注家在公众号