标签:
点击标签查看相关内容
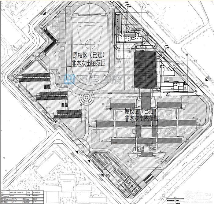
宝安中学高中部改扩建新进展,相关证件已核发
深圳市宝安区建筑工务署申请的“宝安中学(集团)高中部改扩建工程”项目用地位于深圳市宝安区新安街道。
经审查,同意核发该项目的《建设工程规划许可证》。现将本次核发的《建设工程规划许可证》及总平面图予以公布。
选址与规模
项目用地位于宝安区新安街道 20 区洪浪南路计规定容积率建筑面积达 17132.00 平方米,总建筑面积则为 28533.33 平方米;
核心建设内容
重点新增 1 栋 12 层宿舍楼(建筑高度 45.10 米)与 1 栋综合楼(含 3F、5F 不同层数设计,最高高度 23.80 米),并通过新增连廊衔接现有教学楼,提升校区空间联动性;
功能配套细节
地上区域规划 11903 平方米生活服务用房、2958.72 平方米架空绿化休闲空间及 430 平方米架空层,满足师生住宿、休闲需求;
地下区域则设置 7167.26 平方米共用停车库与 1170.26 平方米公用设备用房,同时配套 157 个机动车停车位(含 52 个充电桩位),剩余车位均预留充电设施安装条件,电动自行车充电位配置比例不低于非机动车停车位的 20%;
建设标准要求
项目严格遵循绿色发展与智慧建设理念,海绵城市年径流总量控制率达 64.65%,建设标准不低于国家二星级绿色建筑,且需按要求实施建筑信息模型(BIM)技术应用。
![]()
![]()
![]()
![]()
经审查,同意核发该项目的《建设工程规划许可证》。现将本次核发的《建设工程规划许可证》及总平面图予以公布。
选址与规模
项目用地位于宝安区新安街道 20 区洪浪南路计规定容积率建筑面积达 17132.00 平方米,总建筑面积则为 28533.33 平方米;
核心建设内容
重点新增 1 栋 12 层宿舍楼(建筑高度 45.10 米)与 1 栋综合楼(含 3F、5F 不同层数设计,最高高度 23.80 米),并通过新增连廊衔接现有教学楼,提升校区空间联动性;
功能配套细节
地上区域规划 11903 平方米生活服务用房、2958.72 平方米架空绿化休闲空间及 430 平方米架空层,满足师生住宿、休闲需求;
地下区域则设置 7167.26 平方米共用停车库与 1170.26 平方米公用设备用房,同时配套 157 个机动车停车位(含 52 个充电桩位),剩余车位均预留充电设施安装条件,电动自行车充电位配置比例不低于非机动车停车位的 20%;
建设标准要求
项目严格遵循绿色发展与智慧建设理念,海绵城市年径流总量控制率达 64.65%,建设标准不低于国家二星级绿色建筑,且需按要求实施建筑信息模型(BIM)技术应用。




粤公网安备 44030402000760号
