家在深圳,真实业主生活圈_房网论坛

0

|

5

量大——德望府1175套住宅

BA香
BA香

积分:-

注册时间:-

主楼
2025-07-04 11:45:33
标签: 点击标签查看相关内容

量大——德望府1175套住宅

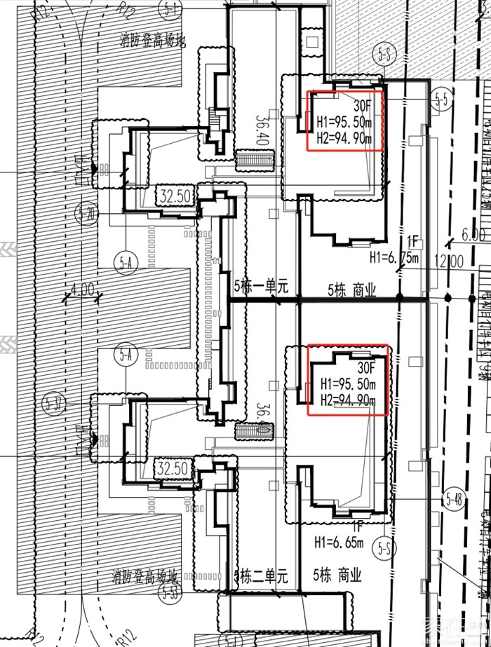
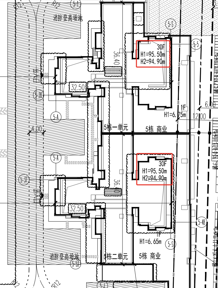
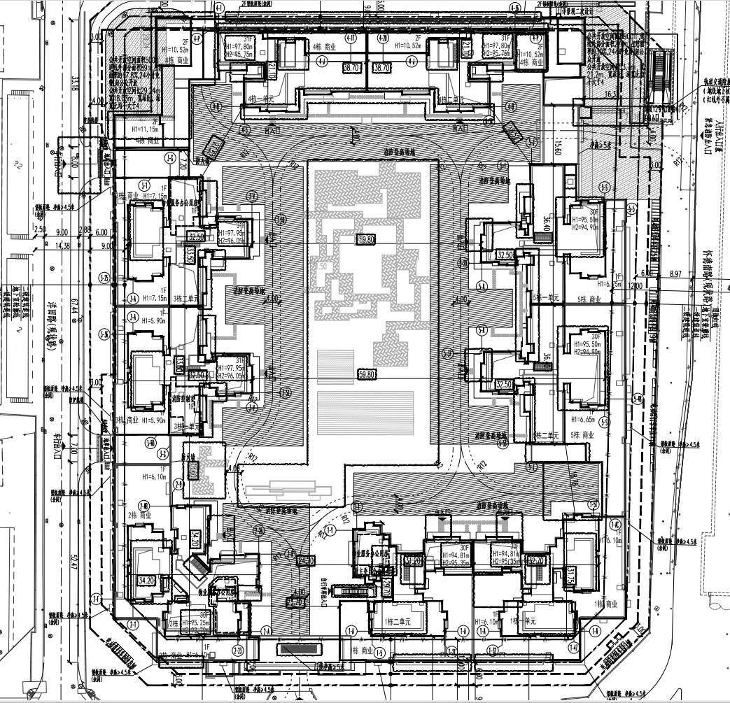
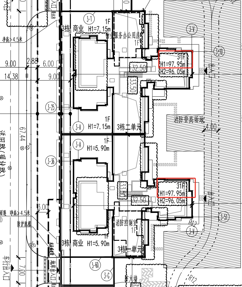
总建设规模240275㎡,地上31层,地下4层,地上由5栋9个单元高层住宅塔楼组成。









分享
0
BA香
BA香

积分:-

注册时间:-

沙发
2025-07-04 11:47:03
德望府建设用地面积2.64万平方米,总建筑面积24.16万平方米。
容积率5.56,计容积率建筑面积14.67万平方米,其中住宅13.59万平方米。









 
BA香
BA香

积分:-

注册时间:-

板凳
2025-07-04 11:47:30
小区总户数1175户,户型套内面积小于90平的,有984户,占比83.74%。

BA香
BA香

积分:-

注册时间:-

地板
2025-07-04 11:48:08
位置

xcgfd
xcgfd

积分:-

注册时间:-

4楼
2025-07-04 11:55:56
垃圾盘
圆冬
圆冬

积分:-

注册时间:-

5楼
2025-07-05 10:28:58
更多消息欢迎来微信群交流



  • 插入图片

    支持一次选择9张图片上传(使用Ctrl、Shift选中);

    支持jpg、png、gif,单张图片不超过10M,png不超过1M,gif不超过300K。

    • 继续添加

  • 提到好友

3(16px)

楼主最近发表

相关帖子

    大家都在看

    下载家在深圳APP

    关注家在公众号