家在深圳,真实业主生活圈_房网论坛

0

|

2

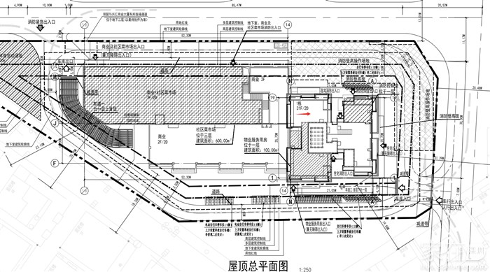
凤凰臻苑112套住宅

BA香
BA香

积分:-

注册时间:-

主楼
2025-06-06 09:48:45
标签: 点击标签查看相关内容

凤凰臻苑112套住宅

建设单位:深圳市凤凰岗股份合作公司,深圳市乾兴汇房地产开发有限公司

建设地址:深圳市宝安区西乡街道前进二路

分享
0
BA香
BA香

积分:-

注册时间:-

沙发
2025-06-06 09:49:12
112套住宅


BA香
BA香

积分:-

注册时间:-

板凳
2025-06-06 09:49:47
一栋31F


  • 插入图片

    支持一次选择9张图片上传(使用Ctrl、Shift选中);

    支持jpg、png、gif,单张图片不超过10M,png不超过1M,gif不超过300K。

    • 继续添加

  • 提到好友

3(16px)

楼主最近发表

相关帖子

    大家都在看

    下载家在深圳APP

    关注家在公众号