家在深圳,真实业主生活圈_房网论坛

0

|

3

新桥东领湾城观邸1231套住宅

传信息
传信息

积分:-

注册时间:-

主楼
2025-04-29 10:18:49
标签: 点击标签查看相关内容

新桥东领湾城观邸1231套住宅

新桥东片区重点城市更新单元首个商品房地块备案为——新桥东 领湾城观邸
新桥东片区重点城市更新单元用地范围面积1523837.9㎡,拆除范围用地面积为1272374.2㎡,开发建设用地面积为739863㎡,规划容积4169158㎡,规划容积率5.6




分享
0
传信息
传信息

积分:-

注册时间:-

沙发
2025-04-29 10:19:44

许可证

传信息
传信息

积分:-

注册时间:-

板凳
2025-04-29 10:20:42
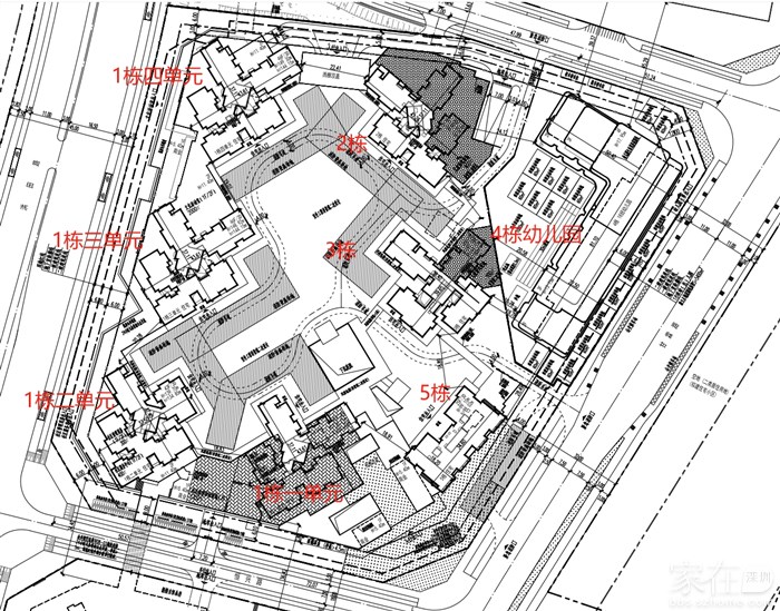
新桥东领湾城观邸(08-03地块)为二类居住用地,用地面积32205.4㎡,容积率5.2,总建筑面积约26.35万㎡规划7栋住宅及1所幼儿园


其中公共配套设施6400㎡(含地下)区域汇聚机房600㎡,社区体育活动场地占地1360㎡,(18班幼(托)儿园5800㎡、独立占地6500㎡),限高150米。


传信息
传信息

积分:-

注册时间:-

地板
2025-04-29 10:20:57
效果图



  • 插入图片

    支持一次选择9张图片上传(使用Ctrl、Shift选中);

    支持jpg、png、gif,单张图片不超过10M,png不超过1M,gif不超过300K。

    • 继续添加

  • 提到好友

3(16px)

楼主最近发表

相关帖子

    大家都在看

    下载家在深圳APP

    关注家在公众号