家在深圳,真实业主生活圈_房网论坛

0

|

4

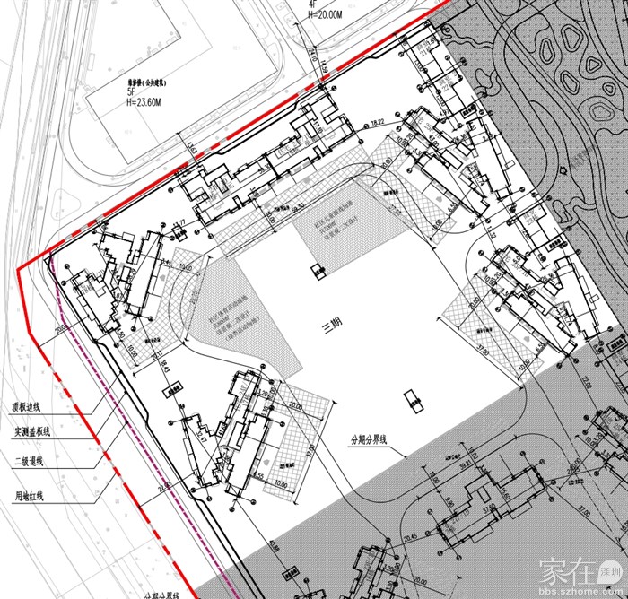
阅海境花园二三期488+534套

BA香
BA香

积分:-

注册时间:-

主楼
2025-04-25 09:51:57
标签: 点击标签查看相关内容

阅海境花园二三期488+534套

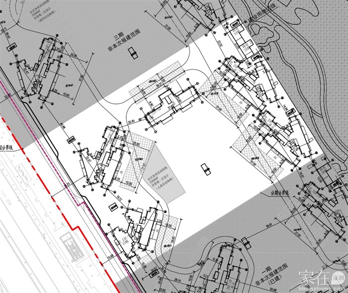
几期分线

分享
0
BA香
BA香

积分:-

注册时间:-

沙发
2025-04-25 09:52:50
2期488套







BA香
BA香

积分:-

注册时间:-

板凳
2025-04-25 09:53:44
三期534套






hfhyd
hfhyd

积分:-

注册时间:-

地板
2025-04-27 12:09:37
把星航华府唯一的卖点--凤凰山山景给遮挡殆尽
五园八年
五园八年

积分:-

注册时间:-

4楼
2025-04-28 15:03:12 来自Android手机客户端
北高架,西快速,东高速,天上飞机,四维一体的天籁之音,谁买谁知道
  • 插入图片

    支持一次选择9张图片上传(使用Ctrl、Shift选中);

    支持jpg、png、gif,单张图片不超过10M,png不超过1M,gif不超过300K。

    • 继续添加

  • 提到好友

3(16px)

楼主最近发表

相关帖子

    大家都在看

    下载家在深圳APP

    关注家在公众号