家在深圳,真实业主生活圈_房网论坛

0

|

9

西乡新盘——御品峦山雅苑504套住宅

传信息
传信息

积分:-

注册时间:-

主楼
2025-01-13 12:12:21
标签: 点击标签查看相关内容

西乡新盘——御品峦山雅苑504套住宅

工程名称:御品峦山雅苑(不含桩基)

建设单位:深圳市景恒泰房地产开发有限公司

建设规模:124193.47平方米

建设地址:深圳市宝安区西乡街道

设计单位:梁黄顾建筑设计(深圳)有限公司

施工单位:江苏弘盛建设工程集团有限公司

监理单位:深圳华西建设工程管理有限公司



合同开工日期:2024-09-01合同竣工日期:2027-01-22
分享
0
传信息
传信息

积分:-

注册时间:-

沙发
2025-01-13 12:13:53
许可证


传信息
传信息

积分:-

注册时间:-

板凳
2025-01-13 12:14:12

504套住宅


传信息
传信息

积分:-

注册时间:-

地板
2025-01-13 12:17:33
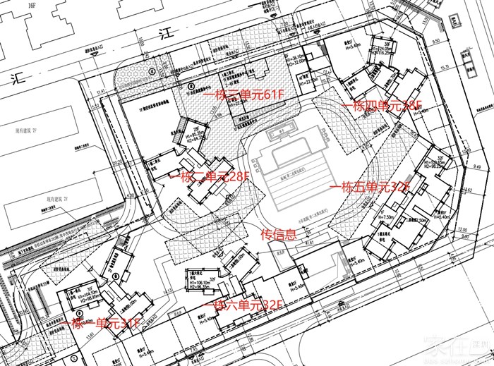
平面图


传信息
传信息

积分:-

注册时间:-

4楼
2025-01-13 12:17:38
效果图






传信息
传信息

积分:-

注册时间:-

5楼
2025-01-13 12:19:21
优势:近地铁,近机场

缺点:旁边有加油站
宝安湾
宝安湾

积分:-

注册时间:-

6楼
2025-01-14 15:23:40



jiazainmg
jiazainmg

积分:-

注册时间:-

7楼
2025-04-08 11:17:45
持续关注中……
Tao_2018
Tao_2018

积分:-

注册时间:-

8楼
2025-10-06 20:17:30 来自Android手机客户端
幼儿园没有,桃源居学位没有,附近全是大马路,不宜居住。
桃白白
桃白白

积分:-

注册时间:-

9楼
2025-10-13 10:55:32 来自iPhone客户端
  • 插入图片

    支持一次选择9张图片上传(使用Ctrl、Shift选中);

    支持jpg、png、gif,单张图片不超过10M,png不超过1M,gif不超过300K。

    • 继续添加

  • 提到好友

3(16px)

楼主最近发表

相关帖子

    大家都在看

    下载家在深圳APP

    关注家在公众号