家在深圳,真实业主生活圈_房网论坛

0

|

6

西乡户型图,盛合天瑞80-105平

王子的王
王子的王

积分:-

注册时间:-

主楼
2024-12-24 14:37:27
标签: 点击标签查看相关内容

西乡户型图,盛合天瑞80-105平

已开展示,准备要入市,目前看到推出540套,80-101平,价格猜多少?



分享
0
王子的王
王子的王

积分:-

注册时间:-

沙发
2024-12-24 14:37:50
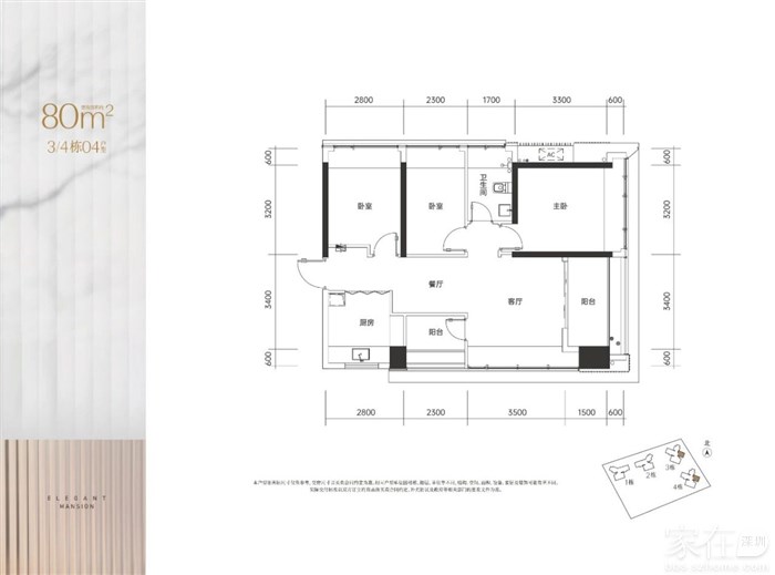
80平





王子的王
王子的王

积分:-

注册时间:-

板凳
2024-12-24 14:39:18
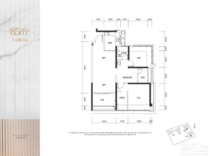
85平





王子的王
王子的王

积分:-

注册时间:-

地板
2024-12-24 14:39:31
105平



王子的王
王子的王

积分:-

注册时间:-

4楼
2024-12-24 14:41:00
这批不知道会卖的怎么样?



清水断愁
清水断愁

积分:-

注册时间:-

5楼
2024-12-25 09:22:57
不是航城街道的嘛,怎么成了西乡了?
不沾地铁,不沾学区,周边规划不错,三年内兑现后,有新学校金盛小学,医院也新建,就是靠近广深公路,噪音较大,旁边的云奕府、星奕府都还有一些尾盘没卖掉,买现楼还是买期房?!

桃白白
桃白白

积分:-

注册时间:-

6楼
2025-02-22 13:41:31 来自iPhone客户端
  • 插入图片

    支持一次选择9张图片上传(使用Ctrl、Shift选中);

    支持jpg、png、gif,单张图片不超过10M,png不超过1M,gif不超过300K。

    • 继续添加

  • 提到好友

3(16px)

楼主最近发表

相关帖子

    大家都在看

    下载家在深圳APP

    关注家在公众号