家在深圳,真实业主生活圈_房网论坛

0

|

2

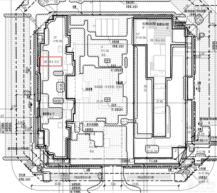
灵芝新盘——中南珺悦名都174套

松松的天空
松松的天空

积分:-

注册时间:-

主楼
2024-10-30 11:30:01
标签: 点击标签查看相关内容

灵芝新盘——中南珺悦名都174套

看上了四季度只有174套


分享
0
松松的天空
松松的天空

积分:-

注册时间:-

沙发
2024-10-30 11:31:07
一栋写子楼和住宅


松松的天空
松松的天空

积分:-

注册时间:-

板凳
2024-10-30 11:32:37
位置

  • 插入图片

    支持一次选择9张图片上传(使用Ctrl、Shift选中);

    支持jpg、png、gif,单张图片不超过10M,png不超过1M,gif不超过300K。

    • 继续添加

  • 提到好友

3(16px)

楼主最近发表

相关帖子

    大家都在看

    下载家在深圳APP

    关注家在公众号