家在深圳,真实业主生活圈_房网论坛

0

|

14

中铁阅臻府下周要开展示了(94-138平户型图)

BAX乡之迷
BAX乡之迷

积分:-

注册时间:-

主楼
2024-02-26 15:42:17
标签: 点击标签查看相关内容

中铁阅臻府下周要开展示了(94-138平户型图)

宝中的盘还是很速度的,只能卖一半,另外一半只能现楼了!年前就看到在招SS了,说下周就要开展示了,但不在现场

都说户型还不错,94-138平,你会喜欢吗?

分享
0
BAX乡之迷
BAX乡之迷

积分:-

注册时间:-

沙发
2024-02-26 15:44:58
重点是8.86万的价格,会不会给宝中带来一些流量?
laolingshi
laolingshi

积分:-

注册时间:-

板凳
2024-02-26 16:05:05
只卖8.86吗?真便宜啊

BAX乡之迷
BAX乡之迷

积分:-

注册时间:-

地板
2024-02-26 16:08:51
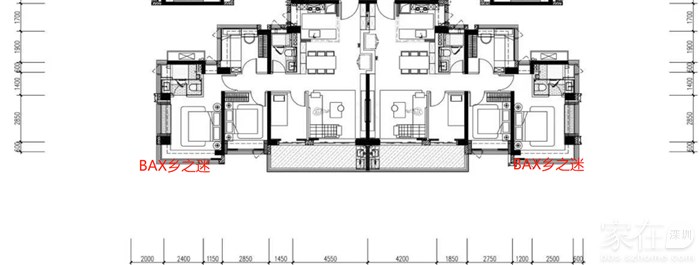
一单元的户型图,

小面积为主


95平




108平
BAX乡之迷
BAX乡之迷

积分:-

注册时间:-

4楼
2024-02-26 16:15:01
主要户型,只能卖一半,其它现楼出售

94平116套
108平389套

138平124套




BAX乡之迷
BAX乡之迷

积分:-

注册时间:-

5楼
2024-02-26 16:15:39
会考虑不?
引用2楼laolingshi的发言:
只卖8.86吗?真便宜啊

BAX乡之迷
BAX乡之迷

积分:-

注册时间:-

6楼
2024-02-26 16:16:40
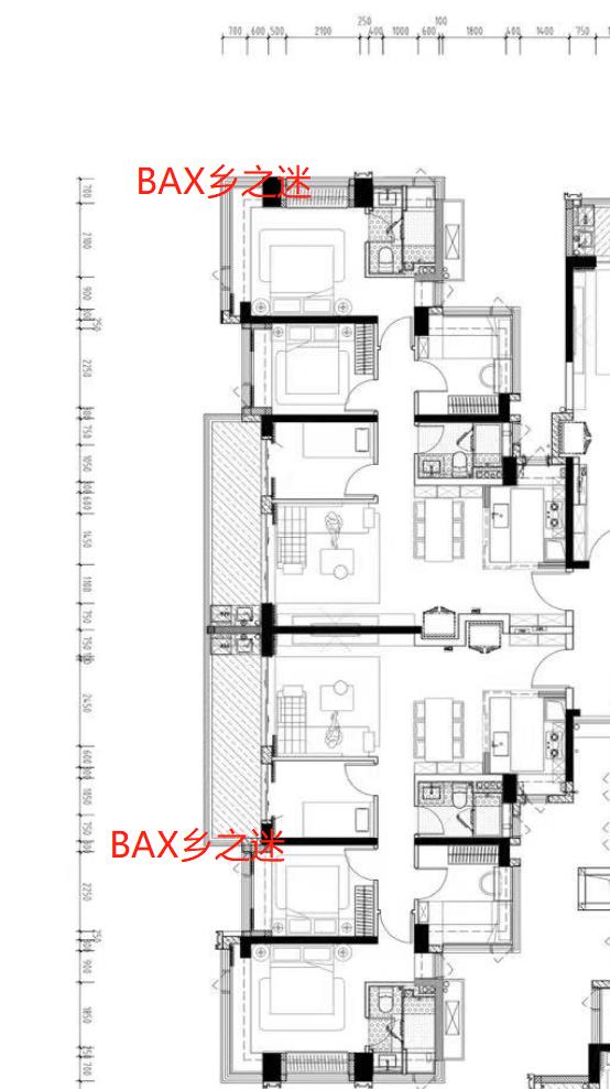
二单元户型

全是四房户型

108-138平







laolingshi
laolingshi

积分:-

注册时间:-

7楼
2024-02-26 18:10:03
这个价格还是很香的,就是小区有点小啊。

什么时候交楼啊?

引用5楼楼主的发言:
会考虑不?
引用2楼laolingshi的发言:
只卖8.86吗?真便宜啊

未来已来
未来已来

积分:-

注册时间:-

8楼
2024-02-27 06:12:41 来自Android手机客户端
不要买中铁的房子,中铁诺德被弄成啥样了。
xcgfd
xcgfd

积分:-

注册时间:-

9楼
2024-02-27 12:57:32
地段很不错,未来不知道有没有地铁
laolingshi
laolingshi

积分:-

注册时间:-

10楼
2024-02-27 15:30:40
有啥故事?难道质量出问题啊
引用8楼未来已来的发言:
不要买中铁的房子,中铁诺德被弄成啥样了。
东部的风光
东部的风光

积分:-

注册时间:-

11楼
2024-02-29 23:42:05
看招聘信息是两个中字头企业,会不会更稳健些?
Lorin123123
Lorin123123

积分:-

注册时间:-

12楼
2024-03-02 20:40:33 来自Android手机客户端
周边楼盘都七万,为什么它这么贵
深南光影
深南光影

积分:-

注册时间:-

13楼
2024-04-11 20:56:09
总共多少层
专业设计与施工
专业设计与施工

积分:-

注册时间:-

14楼
2024-09-18 23:02:07
用户被禁言
  • 插入图片

    支持一次选择9张图片上传(使用Ctrl、Shift选中);

    支持jpg、png、gif,单张图片不超过10M,png不超过1M,gif不超过300K。

    • 继续添加

  • 提到好友

3(16px)

楼主最近发表

相关帖子

    大家都在看

    下载家在深圳APP

    关注家在公众号