家在深圳,真实业主生活圈_房网论坛

0

|

6

招商A301-0602拍卖地更名为招商会展湾雍境名邸(804套住宅)

飞鸽传信
飞鸽传信

积分:-

注册时间:-

主楼
2023-09-01 09:03:23
标签: 点击标签查看相关内容

招商A301-0602拍卖地更名为招商会展湾雍境名邸(804套住宅)

招商会展湾雍境名邸平804套住宅

许可证1栋,总933套,对外233套住宅,700套保障房(自持588套,给142套)


许可证2-3-4-5栋,601套住宅




分享
0
飞鸽传信
飞鸽传信

积分:-

注册时间:-

沙发
2023-09-01 09:05:23
许可证1栋,总933套,对外233套住宅,700套保障房(自持588套,给142套)



飞鸽传信
飞鸽传信

积分:-

注册时间:-

板凳
2023-09-01 09:05:42
参数2-3-4-5栋,601套住宅


飞鸽传信
飞鸽传信

积分:-

注册时间:-

地板
2023-09-01 09:06:00

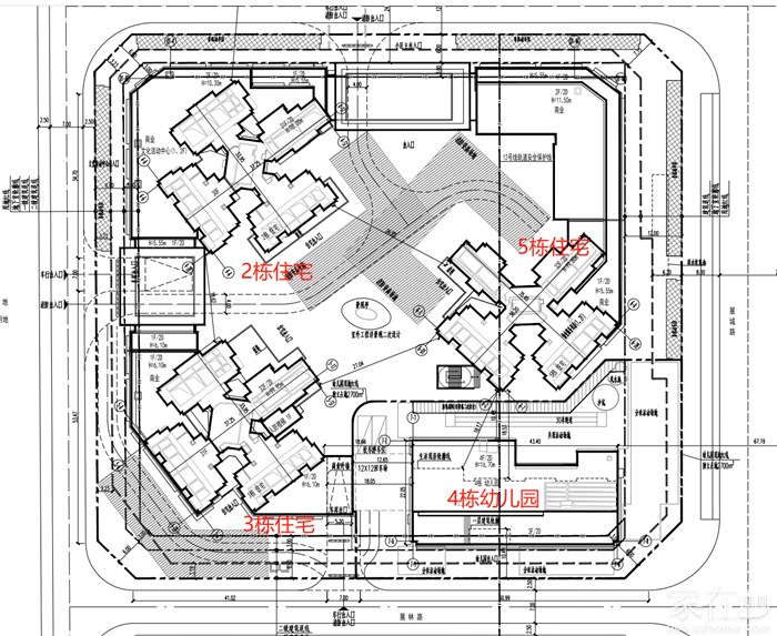
平面图

飞鸽传信
飞鸽传信

积分:-

注册时间:-

4楼
2023-09-01 09:06:19
招商会展湾雍境名邸(804套住宅)


参数


飞鸽传信
飞鸽传信

积分:-

注册时间:-

5楼
2023-09-01 09:07:07
位置

专业设计与施工
专业设计与施工

积分:-

注册时间:-

6楼
2024-09-18 22:50:46
用户被禁言
  • 插入图片

    支持一次选择9张图片上传(使用Ctrl、Shift选中);

    支持jpg、png、gif,单张图片不超过10M,png不超过1M,gif不超过300K。

    • 继续添加

  • 提到好友

3(16px)

楼主最近发表

相关帖子

    大家都在看

    下载家在深圳APP

    关注家在公众号